RFR X α大会:幕墙材料与技术的创新应用
展览背景
「阿尔法建筑大会」每年 3 月在广州举办,涵盖全球建筑新项目、新设计、新技术、新材料的展览;
同时联合全球各大专业媒体等专业机构,策划举办热点话题专业会议。
展览名称:阿尔法建筑⼤会
展览主题:X 并生
展览时间:2022 年 3 月 11-13 日
展览地点:广州·南丰中国会展中心
同期展览:WINDOOR 第 28 届门窗幕墙新品展(建筑表皮材料方向)
展览规模:10 万+平方米,6 万+专业观众
专题策展—幕墙材料与技术的创新应用
策展单位:RFR
策展主题:幕墙材料与技术的创新应用
策展方向:2021年5个全新网红项目的创新表皮装置
展示内容
花盆立面
关键词:2500个花钵体一体化技术解决方案
参展项目:恒基旭辉新天地
建筑设计:让•努维尔
幕墙咨询:RFR
幕墙创新:UHPC整合式幕墙单元
应用新材料:UHPC高性能混凝土


恒基旭辉新天地由坚挺、彩色UHPC板包裹的矮墙、金属百叶、彩色水管,在光影的交错掩映中形成一幅诗意的底图,2500个花钵是可辨识的最具象的立面元素,像是立面上的一个个烟斗。

技术难点:在严苛的100mm退界构造空间内集合了具有拆卸功能的花钵支座、隐藏式滴灌管线,UHPC板干挂系统、灯光走线等。

节点图 © RFR
AG01-电动百叶/陶砖
关键词:可调节的建筑外表皮灵活把控自然光线摄入
参展项目:青岛西海艺术湾
建筑设计:让•努维尔
幕墙咨询:RFR
幕墙创新:可调节幕墙
应用新材料:可动百叶系统


建筑面积共17,000平米,内部有12个形态各异的展厅,由一条“时内时外”的漫步道贯穿所有展厅。在这条长长的漫步道中,努维尔大量开窗引入了景色,走在里面,感受人、海洋、建筑与艺术的穿梭互动。

技术难点:为了保证展厅的通透性,展厅的“肋骨”支架采用玻璃,在此过程中要保持受力均匀。

节点图 © RFR
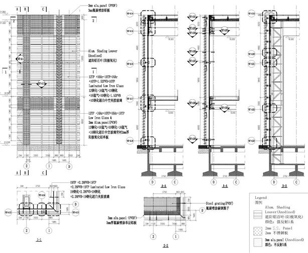
东立面小鸟幕墙、屋面三角玻璃节点
关键词:汽车模具冲压技术、超长冲压搪瓷钢板
参展项目:北京国家会议中心二期
建筑设计:包赞巴克
幕墙咨询:RFR
幕墙创新:双曲面幕墙
应用新材料:珐琅板


主体建筑整体造型取意于“鲲鹏展翅”,结合上建筑体表面群鸟飞舞的造型,可谓是“如鸟斯革,如翚斯飞”

技术难点:双曲面群鸟幕墙采用超长冲压搪瓷钢板,创新采用了汽车模具冲压技术进行了双曲面制作,复杂最长板面长度超过7米。


节点图 © RFR
空中艺廊玻璃转角
关键词:空中漂浮的玻璃盒子
参展项目:上海浦东花木行政文化中心10号地块
建筑设计:KPF
幕墙咨询:RFR
幕墙创新:空中艺阁玻璃肋幕墙
应用新材料:内外片双夹胶半钢化玻璃、SGP中间膜


空中大堂从塔楼主体中部滑出,演绎出了一种富有张力的高级感, 以“空中漂浮的玻璃盒子”为创意来传达别具一格的视觉效果。

技术难点:保证在89米高的空中大堂应用玻璃肋的安全性

节点图 © RFR
玻璃转角单元
关键词:景观最大化
参展项目:上海华润苏河湾
建筑设计:Foster + Partners
幕墙咨询:RFR

项目灵感来源于苏州河丰富的历史及工业传承。塔楼建筑的结构框架及立面细节的表达,映衬着周边桥梁及建筑物的工业美学。通过工业感的细部来尊重历史。

项目亮点:极致最小化转角立柱来实现塔楼景观视线的最大化
关于RFR
RFR是一家源起于巴黎屡获国际奖项的顾问工程师事务所,由结构大师Peter Rice在1982年与游艇设计师Martin Francis和建筑师Ian Ritchie共同创立。RFR自2003年在中国上海开展业务,并于2011年在香港设立控股公司,统筹在亚洲地区团队。
RFR在中国大陆以上海团队为中心,技术团队分布在上海/沈阳/北京/深圳四地办公室。现今有70多位技术专才,来自多元的教育和专业背景,中英双语工作。亚洲团队和巴黎团队在项目上延续紧密合作,确保解决方案的国际水准。
2022年3月11-13日,RFR将携带以上创新项目于展览现场展示。
展览名称:阿尔法建筑⼤会
展览主题:X 并生
展览时间:2022 年 3 月 11-13 日
展览地点:广州·南丰中国会展中心
同期展览:WINDOOR 第 28 届门窗幕墙新品展(建筑表皮材料方向)
展览规模:10 万+平方米,6 万+专业观众
合作媒体: