首页 > 作品 > 正文

DK作品 | 磐舍DK作品 | 磐舍

2020-05-20 发布

  项目坐落于山东日照古村落中,该村有着厚重的历史沧桑感,100余座百年老屋至今保存完好,房屋墙体多用产自附近沟涯河畔的石头砌垒而成,就像生命绽放之后留下的微弱烟火,我们能从斑驳中感受属于那个时代的精彩。初识该地惊于其野、惊于其静,场地东侧紧靠山丘,西侧临水,三棵大树伫立其中。甲方希望在此处新建一处房屋,用来满足休憩、待客等功能,其场所精神给人以志向隐于野的向往。




  生长的建筑
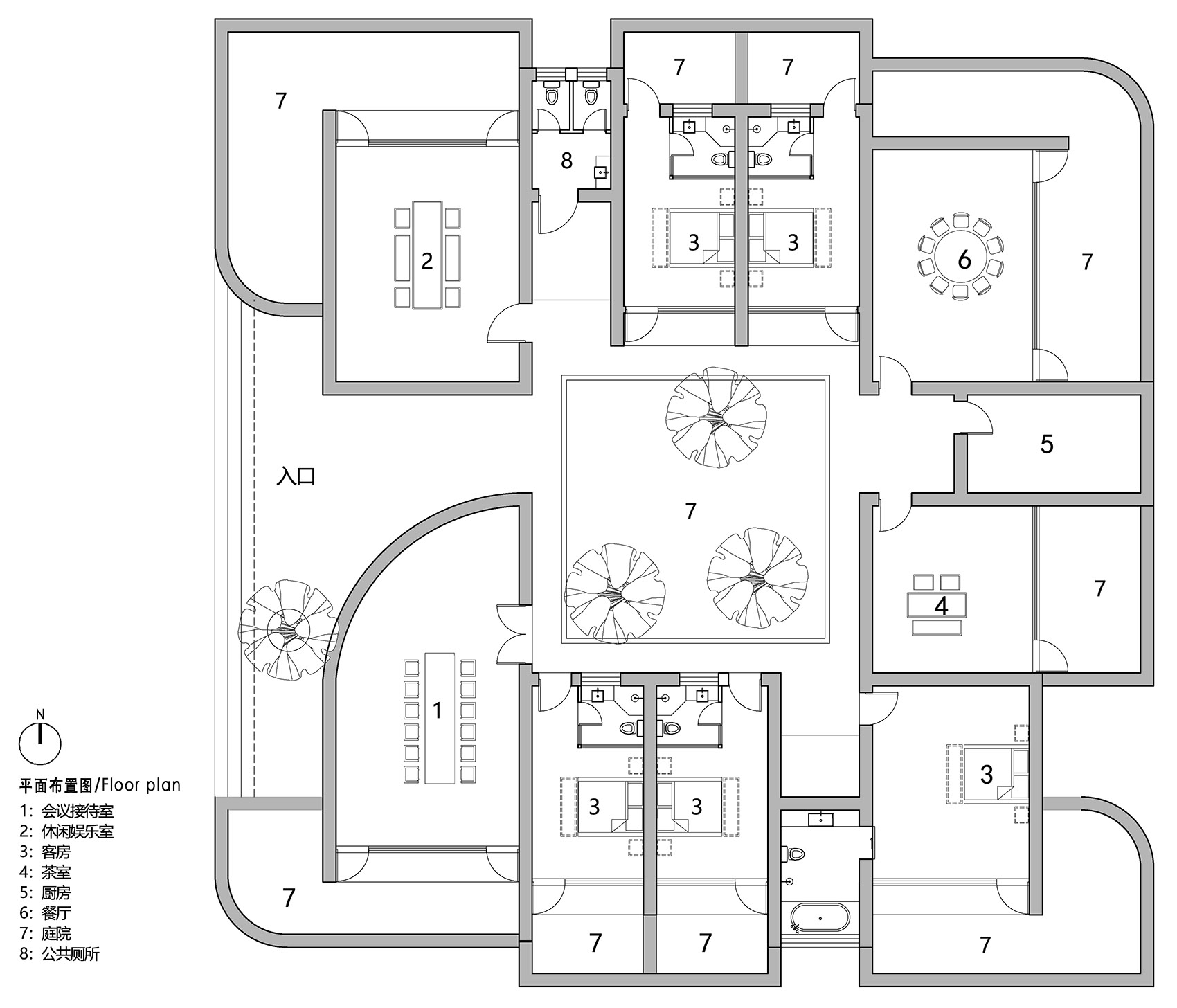
  建筑方案的生成源于对设计内容与场地的回应,我们利用当地特有的石材让他们重新回到更重要的位置,尝试创造一座“生长”出来的当代建筑,营造“垂钓坐磐石,水清心亦闲”的场所精神。我们以中国北方传统民居的居住逻辑作为原始模型开始推演,由围合三棵树的院落空间向外延伸,四面合围布置房舍,根据流线与功能划分空间格局,满足餐饮、聚会、住宿等功能需求。“宅中有院,院中有屋,屋中有院,院中有天”,我们希望这是一个对“精神场所”的探索。





  整座建筑磐居在山丘脚下,四面围合而成的建筑体量包含了餐厅、茶室、客房及接待室。每个房间的窗与中心庭院反向而开,这样的布置保证了流线朝内而视线朝外。基于私密问题的考虑,我们在窗外同样利用石头堆砌的矮墙来界定外空间与建筑边界,矮墙与朝外向的大面积开窗之间又形成了独立于整体建筑的微院落,既保证了室内空间的采光与视野,同时也满足了在整体空间中私密空间与公共空间的转换。





  工有巧,材有美
  为了很好契合当地古村落的氛围,符合此地的气场,我们邀请了当地的工匠师傅,他们精湛的手艺是实现本项目的关键。整栋建筑墙体全部采用石头砌筑,石头斑驳的纹理给这座建筑赋予了自然的气息,使其更好的与山水环境融为一体。





  建筑创作是从无到有的实验过程,而结果会对场地带来永久的改变。使用者不常在而自然常在,我们希望作品有扎根于自然并与自然常在的关系。最终呈现一座融于自然的石头房子,其精神是一座不一般的石头房子,这也是定义“垂钓坐磐石,水清心亦闲”的磐舍由来。











  项目名称:磐舍
  项目地址:山东日照
  用地面积:约880平米
  建筑面积:320平米
  项目设计&完成年份:2018年9月至2020年3月
  设计方:DK大可建筑设计
  主持设计:杨攀
  设计团队:高浩军 王栋 王学艺
  摄影版权:大可设计
凡注明“国际设计网”的所有文章,及本网站上的项目案例,未经本网授权不得转载、摘编或利用其它方式使用。
已经授权者,应在授权范围内使用,并注明“来源:国际设计网”。违反上述声明者,本网将追究其相关法律责任。