首页 > 作品 > 正文

建筑营|折叠院建筑营|折叠院

2020-06-08 发布

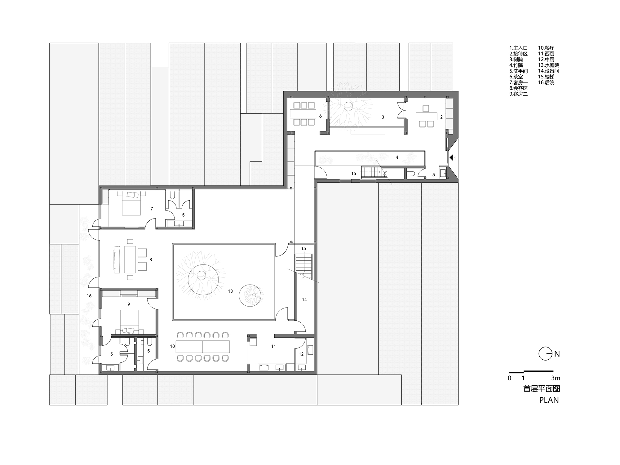
项目位于北京东城区钱粮胡同一片院落之间,占地面积约410平方米。原有建筑并不是四合院常见的坡顶建筑,而是几个相互分离的砖混平顶房。平顶房应该是四合院某一时期被改建的结果,在旧城之中也有不少这样的房子。场地分前后两个部分,前部是一块空地,包含两个砖房和一棵老树;后部是一个U形建筑体,玻璃屋顶盖住了内院。旧建筑结构老化,房间狭小封闭,缺少基础设施,已经无法满足当代生活的使用,需要彻底改造。改造之后的建筑将出租给潜在的客户,需要满足可办公、可聚会、可居住的弹性使用。因此,本次改造的主要挑战是:如何基于现存条件做恰当的拆改,增加建筑空间的活力,回应不确定的功能。
Theproject is located in Qianliang Hutong, Dongcheng District, Beijing, with asite area of about 410 square meters. Different from a typical "Siheyuan"with sloped roof, the original architecture was composed of several disconnectedflat-topped rooms featuring a traditional brick-and-concrete structure, whichare supposed to be transformed from a Siheyuan at one time and can be seen inmany old areas of Beijing. The site consisted of two parts. The front part wasan open ground with two brick rooms and an old tree, while the rear part presenteda U-shaped structure and had a courtyard roofed by glass. The originalbuilding, with isolated and narrow rooms and a lack of infrastructures, wasgradually worn out so that it needed to be completely reconstructed in order tomeet the demands of modern life. The rebuilt building will be rented formultiple purposes such as working, friends gathering, and dwelling, so thegreatest challenge for this transformation project was how to present a moredynamic space with a variety of functions through appropriate demolition andrenovation based on site conditions.





基于平屋顶建筑的特点,设计在旧有建筑平面格局上添加了连廊和楼梯,将屋顶与地面、房屋与庭院相互串联,成为一条可通达赏玩的折叠循环路线,让建筑的内与外、上与下、新与旧产生互动关系。平屋顶是一处在四合院区域难得的公共活动场地,也是内部功能使用的重要延伸,屋顶景观与周边复杂多样的坡屋顶建筑和树木形成有趣的对应。围绕折叠的环线,由入口向内部自然划分出四个不同尺度的庭院——入口处狭长的竹院;保留原有老槐树的树院;清除原来玻璃顶,并置入水景、卵石的水院;以及保留南向与邻里过渡的后院。因此,在这个空间游走将伴随着不断变化的景致。保留原有建筑的两处砖房子,并新增三处砖盒子则作为私密空间,功能分别被设定为休息室、厨房、卫生间等。盒子之间构成连续而又分离的公共区域,可容纳办公、聚会、餐饮等活动。砖盒子墙体内部隐藏着屋面的结构,设计有意让屋面与砖盒子墙面脱开产生天光的缝隙,令二者独立并置。项目沿用了四合院常见的旧砖、青瓦、水泥等作为主要材料。屋面均为立砌青瓦铺装,青瓦按照屋顶不同方向线性排布,并跟随楼梯连接到室内,产生如流水一般的视觉效果。屋面为现浇混凝土板,室内表面保留了木纹模板的自然纹理。砖盒子则是由附近院落拆除的旧砖砌筑的,由墙面延伸到屋顶并形成了休息座椅。
Considering thecharacteristics of flat-roofed buildings, ARCHSTUDIO added corridors and staircasesto link rooms and yards, roof and ground respectively. In this way, a “folding”and looping circulation route was formed, allowing interactions between interiorsand exteriors, up and down, and new and old. The even roof is not only a rarepublic activity area, but also an extension of internal functions, with itslandscape forming interesting contrast to the surrounding pitched-roofbuildings and trees. Along the circulation route, four yards of differentscales were marked out, including a long and narrow yard embellished withbamboos at the entrance, a yard with an old locust tree remained in situ, ayard characterized by waterscape and cobbles, with the original glass roofremoved, and a south-facing backyard connecting to the neighbor's house. Byfollowing the circulation, people can enjoy variable views in the space. ARCHSTUDIOretained the two brick rooms that already existed, and at the same timeinserted three new brick-structured boxes, which were set as private spaces andcan serve the functions of sitting room, kitchen, restroom, etc. The gapsbetween the three new boxes form a continuous but detached public space for working,gathering, dining and other activities. The architects hided structural columnsof the roof inside the brick boxes' walls, and deliberately left gaps betweenthe roof and boxes, with a view to letting daylight filter in. Common constructionmaterials for Siheyuan such as bricks, grey tiles and cement were utilized forthis project. The rooftop was paved with grey tiles, which were arranged linearlyin different directions. Notably, those tiles extend to indoor area, resultingin flowing-water-like visual effects. The roof has a cast-in-situconcrete structure, and wood grains on interior surfaces generated from theform work was retained. The brick boxes were built with old bricks fromdemolished houses nearby, with the wall stretching to the rooftop and forming seatsfor resting.
























项目名称:折叠院
项目地址:北京市东城区钱粮胡同
占地面积:410平方米
建筑面积:308平方米
建造时间:2018.04—2019.04
主要材料:砖、青瓦、水泥、水磨石、玻璃
设计公司:建筑营设计工作室
主设计师:韩文强
设计团队:黄涛、王同辉、张富华、郑宝伟、于妍
摄影师:王宁
Project name:Folding Courtyard
Project location: QianliangHutong, Dongcheng District, Beijing
Site area:410 m2
Project area:308 m2
Construction phase: April2018 – April 2019
Main materials: brick,grey tile, cement, terrazzo, glass
Design firm: ARCHSTUDIO
Chief designer:Han Wenqiang
Design team:Huang Tao, Wang Tonghui, Zhang Fuhua, Zheng Baowei, Yu Yan
Photography:WangNing
凡注明“国际设计网”的所有文章,及本网站上的项目案例,未经本网授权不得转载、摘编或利用其它方式使用。
已经授权者,应在授权范围内使用,并注明“来源:国际设计网”。违反上述声明者,本网将追究其相关法律责任。