首页 > 作品 > 正文

Aurora Arquitectos | ARTAVE / CCM音乐学校Aurora Arquitectos | ARTAVE / CCM音乐学校

2020-07-24 发布
鹅黄色的温暖构筑
为孩子们打造的明亮星星

-ARTAVE / CCM音乐学校-

ARTAVE / CCM音乐学校远景

ARTAVE / CCM音乐学校的设计项目坐落于葡萄牙的法马利昂,外墙的鹅黄色调,作为显著的构筑特点,如一颗落于城市中的明亮的星星。
The design project of ARTAVE/ CCM Music School is located in Fama Leone, Portugal. The goose-yellow tone ofthe exterior wall is a significant architectural feature, like a bright starfalling in the city.

ARTAVE / CCM音乐学校远景

ARTAVE / CCM音乐学校远景

ARTAVE / CCM音乐学校远景

ARTAVE / CCM音乐学校远景

这一处小型项目满足了一个最简单的需求:实现两个现有教室之间更紧密的连接。
This project responds to a simple need: theconnection between two existing blocks of classrooms.

ARTAVE / CCM音乐学校远景

ARTAVE / CCM音乐学校远景

ARTAVE / CCM音乐学校近景

ARTAVE / CCM音乐学校近景

ARTAVE / CCM音乐学校近景

通过以一种“垂直结合水平”的关系,为学生在校课间休息时,创造了能够作互动、放松之用的空间背景;同时亦作为室外的露天剧场,为学生的校园生活平添很多色彩和乐趣。
These vertical and horizontal relations are thecontext to create a space of encounter and relaxation for the students duringbreaks, as well as an exterior amphitheatre.

ARTAVE / CCM音乐学校近景

ARTAVE / CCM音乐学校近景

最初这处场地因为随着近些年来不断被各种构筑填充和占据,是一种十分混乱的呈现;而该项目作为人为的积极干预,以一种变形扭曲的方式避免同周遭融于一体——旨在使自己和此处环境分离的同时,尊重现有建筑物的个性和特质。
The original set of buildings is confused, withvarious additions throughout the years. This intervention intends to detachitself and respect the individuality of the existing buildings, twisting andsquirming in order to avoid them.

ARTAVE / CCM音乐学校远景

ARTAVE / CCM音乐学校远景

窗以框景的方式,将森林和白玉花木兰——作为建筑的周遭环境之中,最为美不胜收的风光呈现给校园中的师生,是一处刻意为之却又意料之外的惊喜。
The windows created are frames to the best thingsthe surroundings have to offer: a forest and a magnolia of white flowers.

ARTAVE / CCM音乐学校近景

ARTAVE / CCM音乐学校近景

建筑的内部空间设计采用相近的橙黄色调同外立面的明亮色彩形成一种和谐的呼应,通过使用同色系实现了从外至内的同一语境的连贯性。
The interior spacedesign of the building uses Yellow Red colour to echo the exterior facade.

ARTAVE / CCM音乐学校内景

ARTAVE / CCM音乐学校内景

ARTAVE / CCM音乐学校内景

ARTAVE / CCM音乐学校内景

地面采用灰白黑几何纹路,通过图案的重复,叠加和空间上的垂直线条交织整合,彼此映衬,视觉上平添了几分多维度的动感和趣味。
The ground adoptsgeometric patterns with grey, white and black colour palette. Through therepetition of patterns, the superposition and the vertical lines in the spaceare interwoven and integrated, reflecting each other, and visually adding a bitof multi-dimensional dynamism and fun.

ARTAVE / CCM音乐学校内景

ARTAVE / CCM音乐学校内景

ARTAVE / CCM音乐学校内景

ARTAVE / CCM音乐学校内景

ARTAVE / CCM音乐学校内景

ARTAVE / CCM音乐学校内景

ARTAVE / CCM音乐学校内景

ARTAVE / CCM音乐学校内景

总而言之,这是一处极为大胆的试验作品,为既有的建筑和自然环境提供了一抹最为亮眼的路标,同时也为全校师生创造了一处绝无仅有的空间体验。
All in all, this isan extremely bold experimental work, providing the most dazzling signpost forthe existing architecture and natural environment, and at the same timecreating a unique spatial experience for the teachers and students of theschool.

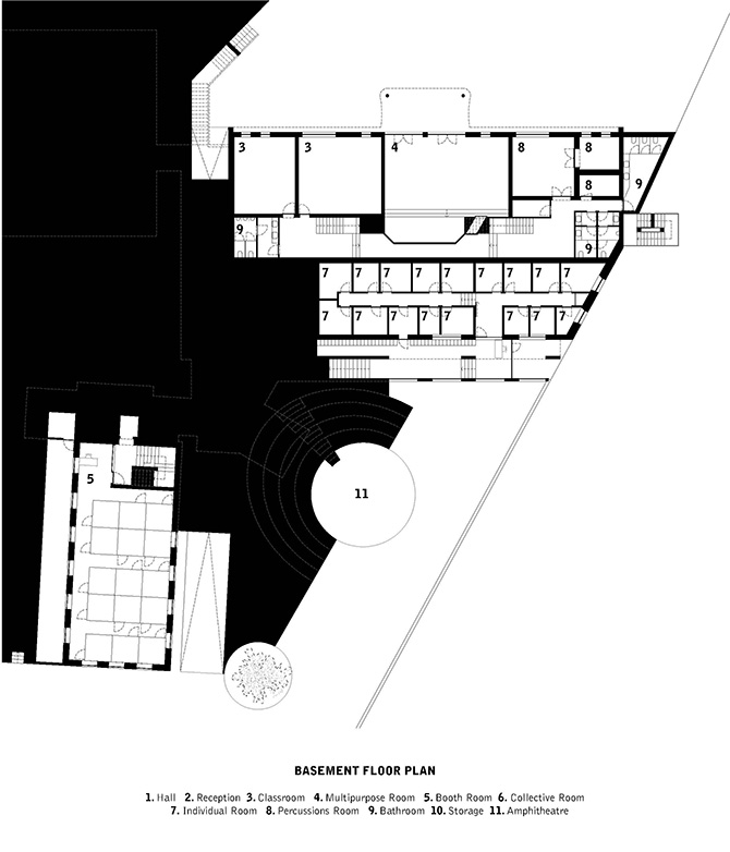
ARTAVE / CCM音乐学校地下室平面图
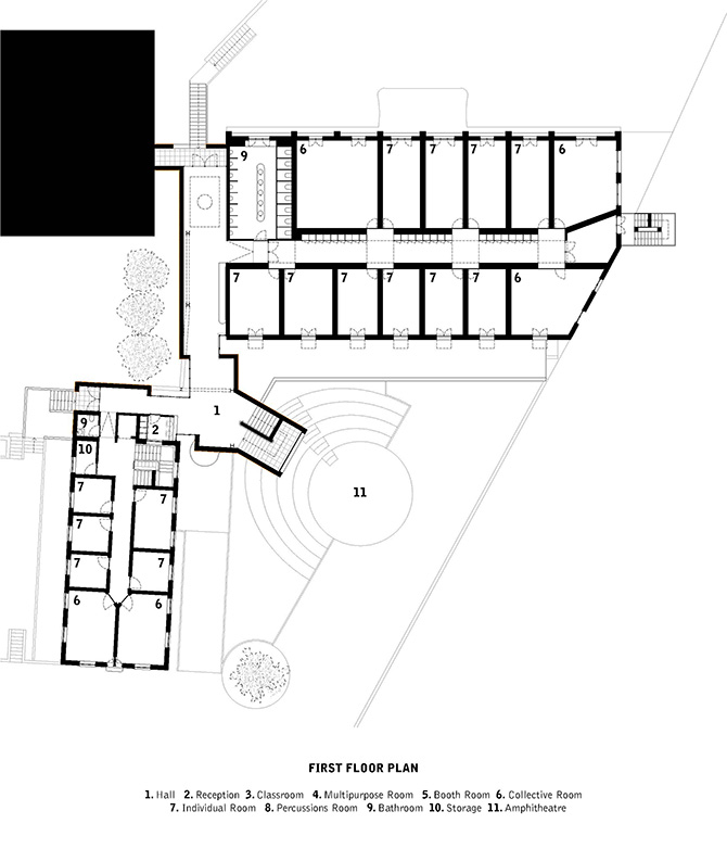
ARTAVE / CCM音乐学校一楼平面图
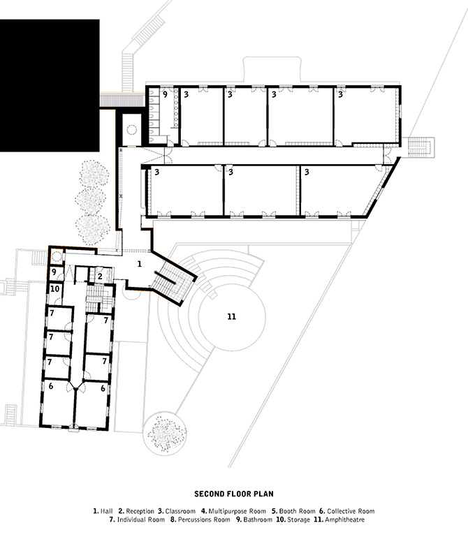
ARTAVE / CCM音乐学校二楼平面图
ARTAVE / CCM音乐学校三楼平面图
ARTAVE / CCM音乐学校屋顶平面图






项目名称:ARTAVE/CCM Music School
项目位置:Caldas da Saúde, Famalicão, Portugal
项目客户:ARTAVE/CCM
项目面积:3873 sqm
项目日期:2017–2020
建筑设计:AuroraArquitectos
设计团队:Sérgio Antunes, Sofia Reis Couto,Tânia Sousa, Rui Baltazar,  Ivo Lapa, Carolina Rocha, Bruno Pereira, DoraJerbic, Anna Cavenago, Afonso Nunes
施工监理:Pedro Sousa Cruz
工程负责:Eng. Manuel Silva, Traço PlanoEngenharia
摄影支持:Aurora Arquitectos
主要材料:
1. FORBO - Linoleum
2. SOSOARES – Windows
3. JNF – Hardware

凡注明“国际设计网”的所有文章,及本网站上的项目案例,未经本网授权不得转载、摘编或利用其它方式使用。
已经授权者,应在授权范围内使用,并注明“来源:国际设计网”。违反上述声明者,本网将追究其相关法律责任。