首页 > 作品 > 正文

RHIZOME | 地图上的托奇卡RHIZOME | 地图上的托奇卡

2020-08-03 发布
和自然融为一体的
林间旅社

“地图上的托奇卡"旅店近景

“地图上的托奇卡"旅店近景

“地图上的托奇卡"旅店近景

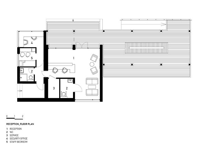
旅店“地图上的托奇卡"位于距离拉多加湖岸上的圣彼得堡120公里的普利则斯克镇;它由一个扩展后的两层小楼组成,主要功能空间包括32个标准双人间,独立套房和接待楼。
Hotel "Tochka on the Map" is located in the town ofPriozersk, 120 kilometers from St. Petersburg on the shores of Lake Ladoga. Thecomplex consists of an extended two-story block of 32 standard double rooms,detached suites, and a reception building.

“地图上的托奇卡"旅店近景

“地图上的托奇卡"旅店近景

“地图上的托奇卡"旅店近景

“地图上的托奇卡"旅店近景

这家旅店是第一个也是目前唯一一个——在俄罗斯实施建筑规模的公共建筑项目中,应用模块化技术的例子;而截止到目前为止,该技术在世界范围内,被越来越广泛地使用。
This hotel is the first and currently the only example of theapplication of modular technology in the implementation of a public buildingproject with an architectural dimension in Russia. Currently, this technologyis increasingly being used around the world.

“地图上的托奇卡"旅店近景

“地图上的托奇卡"旅店近景

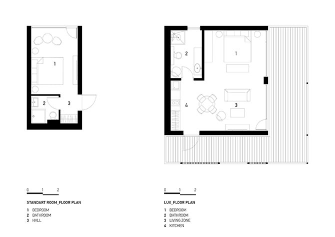
尺寸为3.5×7米的模块已经在生产过程中被制备完成,并在高度准备的情况下交付运输到施工现场——可以说包括所有的工程部件、大部分完成饰面后的建筑材料和管道设备,都是现成的元素;住客只需要连接到网络,对家具进行简单地安置整理,就可以搬进去,正式入住了。总而言之,使用这种模块化技术,可以在施工过程中将对环境的影响降到最低。
Moduleswith dimensions of 3.5 x 7 m are manufactured in production and delivered tothe site in a high degree of readiness - already with all the engineering, mostof the finishing materials and plumbing equipment. These are ready-to-liveelements that you just need to connect to the networks, arrangefurniture - and you can move in. The use of modular technology allowed the environment to be minimally disturbed during construction.

“地图上的托奇卡"旅店近景

“地图上的托奇卡"旅店近景

“地图上的托奇卡"旅店近景

该建筑群的部分区域以即每个房间都可以看到海岸的景色、并且尽可能少得感受到邻居的存在——这样一种原则进行建造设计;松树丛之间延伸出一间双人房,隐藏在松树之间,这使住户无论是在任何角度,都无法完整地看到它的全貌;而与此同时,房间的整个内部空间都建立在一个主要的基底元素上,即全景窗户后面以背景呈现的自然景观。
Parts of the complex are located on the territory in such a waythat each room has a view of the coast, and the presence of neighbours is feltas little as possible. An extended block of double rooms curves and hidesbetween the pine trees, which does not allow you to see it in its entirety atany point. The entire interior of the room is built on one main element -nature behind a panoramic window.

“地图上的托奇卡"旅店近景

在旅馆套房中,玻璃材质的使用面积增加了一倍,通过这种通过透明化空间的设计方法,从而增加了人们同自然更为亲近紧密的感觉;套房露台的大小与房间本身的面积相媲美,因此人们使用该空间的场景变得更加多元和丰富,也可以说,为住户进行不同的室内活动提供了更多的可能性。
In the suite, the feeling of closeness to nature is enhanced bythe doubled glazing area. Terraces of suites are comparable in size to thearea of ​​the room itself, due to which the scenario of using the spacebecomes more complicated and opens up more possibilities.

“地图上的托奇卡"旅店内景

“地图上的托奇卡"旅店内景

“地图上的托奇卡"旅店内景

影响设计决策及其呈现美观性的主要因素,其实是卡累利阿北部的自然环境。因此,被放置于茂盛的野生松林之中的,组成旅馆主体的构筑物们,通过应用模块化技术得以完整留存下来。
The main factor that influenced the design decisions and theiraesthetics was the context — the Northern Karelian nature. Thus, theobjects that make up the hotel complex are located between pine trees,preserved intact thanks to the use of modular technology.

“地图上的托奇卡"旅店内景

“地图上的托奇卡"旅店内景

“地图上的托奇卡"旅店内景

M全景玻璃、材料以及色彩的选择,可以最大程度地提高住户与周遭环境的互动。而通过在旅馆外饰面,使用木材和深色金属,能够将视觉重点从建筑本体中转移成自然风景,作为空间的主要特征。
M Maximum Feed user interaction with the environment madepossible using panoramic glazing, choice of materials and tints. The useof wood and dark metal in the exterior decoration allows to shift the emphasisfrom architecture and make nature the main character of the space.

“地图上的托奇卡"旅店总平面图
“地图上的托奇卡"旅店独栋平面图
“地图上的托奇卡"旅店一楼平面图
“地图上的托奇卡"旅店二楼平面图
“地图上的托奇卡"旅店剖面图
“地图上的托奇卡"旅店接待楼平面图
“地图上的托奇卡"旅店接待楼剖面图
“地图上的托奇卡"旅店组成构筑物

项目名称: “地图上的托奇卡"
项目类型:乡村旅馆
建筑设计:RHIZOME
创建年份:2017
占地面积:1500 sqm
项目位置:列宁格勒地区,普利则斯克
项目状态:实施中
设计团队:Evgeny Reshetov, Tatiana Sinelnikova,Anastasia Voropaeva, Lyubov Lukonina, Elizaveta Morozova, Artem Stepanov, YuliaKorovina, Ilya Belyakov

Project name:"Tochka on the map" Tochka na Karte Сountry Hotel
Project type:Country hotel
Architect:RHIZOME
Year of creation:2017
Area:1500 sqm
Location:Priozersk, Leningrad region
Status:Implemented
The teamof authors:Evgeny Reshetov, Tatiana Sinelnikova, Anastasia Voropaeva, Lyubov Lukonina,Elizaveta Morozova, Artem Stepanov, Yulia Korovina, Ilya Belyakov
凡注明“国际设计网”的所有文章,及本网站上的项目案例,未经本网授权不得转载、摘编或利用其它方式使用。
已经授权者,应在授权范围内使用,并注明“来源:国际设计网”。违反上述声明者,本网将追究其相关法律责任。