首页 > 作品 > 正文

Lacaja | 奥吉托别墅扩建Lacaja | 奥吉托别墅扩建

2020-08-05 发布


▽奥吉托别墅扩建/"Ojito de Agua" house extension

原始房屋地理位置优越,位于苏巴乔克(哥伦比亚,昆迪纳马卡省)一个绿意盎然,生机勃勃的山丘之前。
它的主立面朝东。此次扩建旨在带来午后的阳光,并创建一个“ L”形的形状,该形状围绕着一个大露台,从而扩大了视野并打破了当前建筑的线性安排。
The original house is located in aprivileged place in front of one of the greenest and most exuberant hills ofSubachoque (Cundinamarca).
Its main facade faces east. The expansionseeks to bring the afternoon’s sunlight and create an “L” shape that embraces alarge terrace, exalting the view and breaking the linearity of the currentimplementation.

▽优秀的周边环境/ Excellent surrounding environment

新建建筑可以看做是一个简单的玻璃棱柱,建筑的玻璃立面抓住了周围青山的优美风景。
A simple and glazedprism is defined, which traps the mountain in allits facades.

▽玻璃窗外的风景/ The scenery outside the glass window

厨房是连接原有房屋和新空间的枢纽空间。
The kitchen is the hinge space thatarticulates the original house and the new space.

▽作为枢纽空间的厨房/ Kitchen as hinge space

在它上面,倾斜的窗户作为唯一凸出的体量,显示出后山的轮廓,同时太阳和下午的热量倾撒在房屋内部。
Above it, aninclined window is placed as the only volume that stands out framing the line of the back mountain and covering the innerspace with the sun and the heat of the afternoon.

▽倾斜的天窗和后山的轮廓/an inclined window and the line of the back mountain

在室内,除了通过自然采光来寻求空间的温暖(在非常寒冷的气候中),木质天花板则从天花板的一侧壁下降到壁炉高度,因此,人感受到的室内氛围与视觉接触的山脉的感觉形成强烈对比。
Inside, the spatial warmth (in a very coldclimate) in addition to the natural light, is sought through a wooden ceilingthat descends on one of its side walls to meet the fireplace, so that theinterior atmosphere strongly contrasts with the feeling that gives thepermanent visual contact with the mountain chain.

日落和夜晚具有特殊的意义,因为人造光(指向树木)从面对花园和通道楼梯的侧向窗户照亮了厨房,在点缀着蔬菜图案的混凝土楼梯表面上画出由树叶产生的滤光片。
The sunset and the night have a specialpresence because the artificial light (directed towards the trees) illuminatesthe kitchen from the lateral windows facing the garden and the access stairs,drawing the light filters produced by the foliage on the surface of the concretestairs dotted with vegetable prints.

▽夜晚中的建筑/ Buildings at night

总体而言,该空间围绕着一盆火,在露台终止,并向地平线延伸。
Overall, the space revolves around a bowlof light and fire that ends up on the terrace and expands the view towards thehorizon.

▽露台中央的火盆/ Brazier in the middle of the terrace


▽剖面图/Secton
▽剖面图/Secton
▽剖面图/Secton
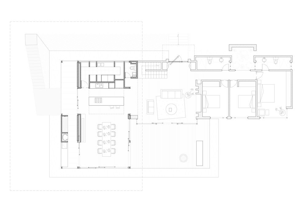
▽平面图/Plan
项目名称:奥吉托别墅住宅扩建
项目地点:苏巴乔克(哥伦比亚,昆迪纳马卡省)
公司名称:Lacaja arquitectos | Gloria Serna
完成年份:2020年7月
地上建筑面积:72平方米
建筑设计总监:Gloria Serna Meza | Arquitecta
建筑设计团队:Fernando Sánchez Pacheco |Arquitecto
管理团队:Yuri Medina
图片来源:马蒂奥·佩雷斯

Project name:Expansion of the "Ojitode Agua" house
Project location: Subachoque (Cundinamarca-Colombia)
Company name: Lacaja arquitectos | GloriaSerna
Completion Year:July 2020
Superficie construida:72㎡
Architectural design director:Gloria SernaMeza | Arquitecta
Architectural design team:FernandoSánchez  Pacheco | Arquitecto
Administrative team:Yuri Medina
Photo credits:Mateo Pérez

凡注明“国际设计网”的所有文章,及本网站上的项目案例,未经本网授权不得转载、摘编或利用其它方式使用。
已经授权者,应在授权范围内使用,并注明“来源:国际设计网”。违反上述声明者,本网将追究其相关法律责任。