首页 > 作品 > 正文

Menos é Mais | “群岛”当代艺术中心Menos é Mais | “群岛”当代艺术中心

2020-08-06 发布


宁静的更迭
连续性策略
Quiet Variation/Continuity strategies

-“群岛”当代艺术中心项目-
The Arquipélago - Contemporary Arts Centre

“群岛”当代艺术中心远景

“群岛”当代艺术中心项目(The Arquipélago - Contemporary Arts Centre)致力于将整体建筑的,具有不同规模,以及不同时代特质的各个部分实现整合和共生;它作为一个跨学科项目,其任务旨在传播,创造和产生一种新兴文化:为来自世界各地的人们,来源四面八方的信息,以及举办形色的社会活动和公开赛事等,提供一处彼此之间能够进行密切交流和积极互动的空间。
The Arquipélago - Contemporary Arts Centre seeks to unite the different scales and times of its parts. It is a transdisciplinary project whose mission is to disseminate, create and produce emerging culture: a space of exchange and interface for people, knowledge and events.

“群岛”当代艺术中心近景

“群岛”当代艺术中心近景

“群岛”当代艺术中心近景

“群岛”当代艺术中心项目(The Arquipélago - Contemporary Arts Centre)的设计风格保持了建筑整体的工业特色,同时突出表现了前身是烟酒工厂的历史遗存建筑,与化身为艺术文化中心、仓储设施、多功能艺术表演厅、实验室、艺术工作室的新兴建筑之间的一场跨时空“对话” 。
The design of Arquipélago - Contemporary Arts Centre – maintains the industrial character of the whole and highlights the dialogue between an existing building (former factory of alcohol / tobacco) and the new construction (arts and culture center, storage facilities, multipurpose hall / performing arts, laboratories, artist studios).

“群岛”当代艺术中心内景

“群岛”当代艺术中心内景

“群岛”当代艺术中心内景

“群岛”当代艺术中心项目(The Arquipélago - Contemporary Arts Centre)通过在既存的旧建筑和两座新兴造建筑之间完成一场“安静”的变更过程,进而明确了“群岛”这一新旧元素结合体的社会和文化身份确定。
The Arquipélago - Contemporary Arts Centre acquires its identity by the quiet variation between the preexistence and the two new buildings.

“群岛”当代艺术中心 - 围栏设计

“群岛”当代艺术中心 - 楼梯设计

另一方面,通过对相关设施实施的遏制策略,在某种程度上提高了现有工厂综合体的不同区域的空间效率和分层功能。
The containment strategy of facilities implementation enhances the spatial efficiency and hierarchical functionality of the different areas of the existing factory complex.

“群岛”当代艺术中心内景

“群岛”当代艺术中心内景

在特殊条件下,新兴建筑体 “吸收”了一些现代功能性以满足人们的时代需求——即便部分功能性与既存的历史建筑的空间性并不兼容。
The new buildings absorb the required functionalities, with special conditions, not compatible with the spatiality of preexisting buildings.


“群岛”当代艺术中心内景

而在这种大背景下,“群岛”当代艺术中心项目(The Arquipélago - Contemporary Arts Centre)并未夸大新旧建筑之间的差异,恰恰相反,它试图通过对建筑形式和物质属性进行视觉图形化处理,将基于不同比例,不同时代特征的建筑元素加以整合和统一。
The project of the Arquipélago does not exaggerate the differences between the old and the new buildings. On the contrary, it seeks to unite the different scales and times of its parts throughout a pictorial manipulation of the form and materiality of the buildings.

“群岛”当代艺术中心外景

譬如,既存建筑物以火山石砌筑作为历史标志,而新兴建筑物选择以没有加注以其他引用或暗喻其他建筑语言的抽象形式作为主要的呈现特征——比如说使用同当地玄武岩石进行内置混合后的混凝土材料,对建筑通体的各式各样的表面材质和纹理进行连续处理的建造技艺,对附带大面积空置面积的露台的建筑空间进行了填补,创造出一种连贯和谐的建筑语言和特质。
The existing constructions are marked by the volcanic stone masonry and the new buildings are characterized by an abstract form, without reference or allusion to any language, built-in concrete with local basalt inert continuously working with the variety of surfaces’ textures and rugosity, complementing the mass of the buildings with the emptiness of the patios.

“群岛”当代艺术中心内景

可以说“群岛”当代艺术中心项目的设计致力于强化现有建筑的空间品质和艺术特性的同时,亦呈现出类型方面的变化——新兴建筑遵循一种宁静而谦逊的设计原则,同既存的历史建筑物并排坐落的地理位置进行了深层的艺术表达。它在并未对现存空间和整体建筑的建设性结构造成破坏的同时,强调了关于既定时期和新兴文化的建筑记忆,同时将新旧建筑物和其背景环境之间创造出了有力的“连续性”,极大程度上促进了建筑物本身的自洽:将其“历史”和“新兴”两大对立面元素实现了高度的共生。
The design is committed to the quality of what exists, showing the typological variations - new buildings are placed next to the existing ones in a serene manner – underlining the architectonical memory of a given period and the new addition, without damaging or subverting the spatial and constructive structures of the whole. Context and contiguity contribute to the autonomy of the object.

“群岛”当代艺术中心 - 建筑雏形实体模型

总而言之,“群岛”当代艺术中心项目(The Arquipélago - Contemporary Arts Centre)通过对现有建筑物进行重塑和修缮,使其成为整个大西洋中部外围地区的,极具时代意义的一处重要空间。
The new program reinvents the existent building, making it a meaningful space in a peripheral region in the middle of the Atlantic Ocean.

“群岛”当代艺术中心 - 建筑雏形实体模型

若将它置于当下社会和文化的环境中,“群岛”项目的设计理念和构建形式亦具有极其重要的意义——作为坐落于中央广场上的新兴公共空间,它的诞生,为艺术提供了一处能够自由呼吸和尽情舒展的舞台,并且将种种传统概念之间的分界变得模糊:私人空间和公共领域、休闲生活与工作时间、艺术追求与日常生活,等等,等等。
The Arquipélago - Contemporary Arts Centre adds meaning to the social and cultural context where it is built. A new Public Space is materialized in a central square/pateo where art feels comfortable and blurs the frontiers between private and public spheres, leisure and work, art and life.



“群岛”当代艺术中心 - 既存建筑照片

可以说在“群岛”项目中,设计师通过建筑结构和基础设施维度上的关于“物质性”的表达,以及对既存的建筑手工制作艺术等传统知识的吸收,从而实现了建筑的可持续性发展和使用。设计师具体采用的可持续措施,旨在寻求能够为人们提供舒适体验的被动系统:譬如,混凝土墙的墙体密度经过周密计算后得以实现最大承载惯性和能源效率,从而使得径流的雨水得以被收集和重复利用,进一步实现高度循环的生态空间。
The aspects of the sustainable performance of the buildings were addressed through its materiality (structures, infrastructures) and the absorption of the existing handcrafted knowledge enriched by its timeless way of building. The sustainable measures adopted are passive systems that seek to provide comfort for the users: the density of the concrete walls offer inertia and energy efficiency; the rainwater is reused.


“群岛”当代艺术中心卫星图

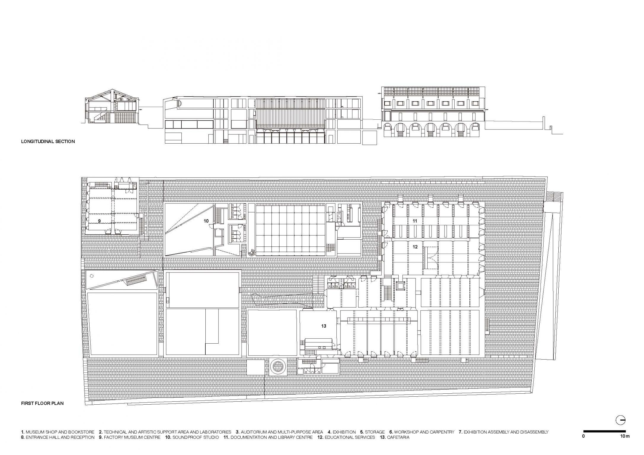
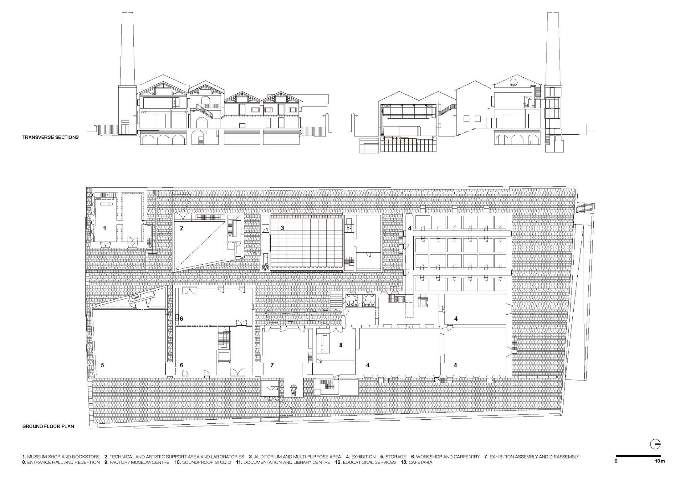
“群岛”当代艺术中心平面设计图A


“群岛”当代艺术中心平面设计图B

“群岛”当代艺术中心平面设计图C




“群岛”当代艺术中心轴视图


“群岛”当代艺术中心设计手稿  - 1


“群岛”当代艺术中心设计手稿  - 2


“群岛”当代艺术中心设计手稿  - 3


“群岛”当代艺术中心设计手稿  - 4


“群岛”当代艺术中心设计手稿  - 5


“群岛”当代艺术中心设计手稿  - 6


“群岛”当代艺术中心设计手稿  - 7


“群岛”当代艺术中心设计手稿  - 8

“群岛”当代艺术中心设计手稿  - 9


“群岛”当代艺术中心设计手稿  - 10

“群岛”当代艺术中心设计手稿  - 11

“群岛”当代艺术中心设计手稿  - 12

“群岛”当代艺术中心设计手稿  - 13


项目基本信息项目名称:“群岛”当代艺术中心
获奖情况:2007 (一等奖)
时间跨度:2007-2010
工程跨度:2011- 2014
项目客户:亚速尔群岛地区政府地区文化局(DRaC)
项目位置:大里贝拉,圣米盖尔,亚速尔群岛,葡萄牙
项目面积:12.914 sqm (9.736 sqm 建筑面积+ 3.178 sqm 室外面积)

建筑设计
主创建筑师:João Mendes Ribeiro Arquitecto Lda. e Menos é Mais Arquitectos Associados, Lda.
项目作者:João Mendes Ribeiro, Cristina Guedes, Francisco Vieira de Campos
项目经理:Adalgisa Lopes, Jorge Teixeira Dias, Inês Mesquita, Filipe Catarino
设计第一团队(João Mendes Ribeiro Arquitecto, Lda.) :Catarina Fortuna, Ana Cerqueira, Ana Rita Martins, António Ferreira da Silva, Cláudia Santos, Joana Figueiredo, João Branco
项目第二团队(Menos é Mais Arquitectos Associados, Lda.) :Cristina Maximino, João Pontes, Luís Campos, Ana Leite Fernandes, Mariana Sendas, Pedro Costa, Inês Ferreira, João Fernandes
图像后期制作/竞赛: Diogo Laje, Óscar Ribas, Ricardo Cardoso (Estúdio Goma)

工程设计
结构工程:Hipólito Sousa, Jerónimo Botelho, Pedro Pinto (SOPSEC,SA)
液压装置:Diogo Leite, Filipe Freitas, Jorge Rocha (SOPSEC,SA)
电气安装:Raul Serafim, Hélder Ferreira (Raul Serafim & Associados, Lda)
安全措施和消防咨询:Maria da Luz Santiago (Raul Serafim & Associados, Lda)
机械装置:Raul Bessa, Ricardo Carreto (GET, Lda.)
燃气装置:José Pinto (SOPSEC,SA)

专家/咨询
项目咨询:Elisa Babo (Quaternaire), Miguel Von Haff Pérez, Marta Almeida
保护与修复咨询:Gabriella Casella (Cariátides)
声学咨询:Rui Calejo, Eduarda Silva, Filomena Macedo (SOPSEC,SA)
热力咨询:André Apolinário (SOPSEC,SA)
舞台力学咨询:João Aidos
景观设计:Ana Barroco, Rui Figueiredo (Quaternaire)

项目承包商:Consórcio Somague, Marques S.A. e Tecnovia.
项目监理:Pedro Câmara (Eng. Tavares Vieira, Lda.)

模型制作:Menos é Mais Arquitectos Associados, Lda.
摄影支持:José Campos

Project name:The Arquipélago - Contemporary Arts Centre
Competition: 2007 (1st prize)
Project: 2007-2010
Construction: 2011- 2014
Client: Regional Directorate of Culture (DRaC) of the Regional Government of the Azores
Location: Ribeira Grande, São Miguel, Azores, Portugal
Area: 12.914 sqm (9.736 sqm buildings + 3.178 sqm exterior arrangement)

Architecture
Architects: João Mendes Ribeiro Arquitecto Lda. e Menos é Mais Arquitectos Associados, Lda.
Authors: João Mendes Ribeiro, Cristina Guedes, Francisco Vieira de Campos
Project Managers: Adalgisa Lopes, Jorge Teixeira Dias, Inês Mesquita, Filipe Catarino
Project Team (João Mendes Ribeiro Arquitecto, Lda.): Catarina Fortuna, Ana Cerqueira, Ana Rita Martins, António Ferreira da Silva, Cláudia Santos, Joana Figueiredo, João Branco
Project Team (Menos é Mais Arquitectos Associados, Lda.): Cristina Maximino, João Pontes, Luís Campos, Ana Leite Fernandes, Mariana Sendas, Pedro Costa, Inês Ferreira, João Fernandes
Image post-production/Competition: Diogo Laje, Óscar Ribas, Ricardo Cardoso (Estúdio Goma)

Engineering
Structural Engineer: Hipólito Sousa, Jerónimo Botelho, Pedro Pinto (SOPSEC,SA) Hydraulic Installations: Diogo Leite, Filipe Freitas, Jorge Rocha (SOPSEC,SA) Electrical Installations: Raul Serafim, Hélder Ferreira (Raul Serafim & Associados, Lda)
Security Measures and Fire Consulting: Maria da Luz Santiago (Raul Serafim & Associados, Lda)
Mechanical Installations: Raul Bessa, Ricardo Carreto (GET, Lda.)
Gas Installations: José Pinto (SOPSEC,SA)

Specialist / Consulting
Programming consulting: Elisa Babo (Quaternaire), Miguel Von Haff Pérez, Marta Almeida
Conservation and Restoration Consulting: Gabriella Casella (Cariátides) Acoustic consulting: Rui Calejo, Eduarda Silva, Filomena Macedo (SOPSEC,SA) Thermal consulting: André Apolinário (SOPSEC,SA)
Stage Mechanics Consulting: João Aidos
Landscaping: Ana Barroco, Rui Figueiredo (Quaternaire)

Constructor: Consórcio Somague, Marques S.A. e Tecnovia.
Supervising: Pedro Câmara (Eng. Tavares Vieira, Lda.)

Models: Menos é Mais Arquitectos Associados, Lda.
Photography: José Campos




JMR Sketch 07 窲oao Mendes Ribeiro.jpg (24.55 KB, 下载次数: 2164)

JMR Sketch 07 窲oao Mendes Ribeiro.jpg
凡注明“国际设计网”的所有文章,及本网站上的项目案例,未经本网授权不得转载、摘编或利用其它方式使用。
已经授权者,应在授权范围内使用,并注明“来源:国际设计网”。违反上述声明者,本网将追究其相关法律责任。