首页 > 作品 > 正文

CCA | 男孩与女孩俱乐部CCA | 男孩与女孩俱乐部

2020-08-07 发布


“安全,快乐,丰富而多元”
为孩子创造一处能够尽情享受无忧年岁的所在

-男孩与女孩俱乐部-
Club de Niños y Niñas

“男孩与女孩俱乐部”(Club de Niños y Niñas)近景

放学后的时间对孩子的全面发展至关重要。而在城市的边缘化地区,很多孩子们放学后的活动时间缺乏有效而全面的成年人监督保护,因此身心健康和总体安全都面临着威胁,特别是在这些地区,缺乏安全监管的娱乐空间,其实就意味着会助长暴力,吸毒甚至酗酒等等恶行,而种种恶行的肆虐则会加重社区空间给居民的不安全感,阻碍孩子们的健康成长,导致一定程度上对社会结构的削弱;如果任由这种情况发展,将会使一种不平等的负面循环,长期存在下去,给社区带来许多其他的严重后果。
After-school time iscritical for children’s comprehensive development. In marginalized areas, manychildren are left without adult supervision when classes finish, a situationthat poses a risk to their health, safety and general wellbeing. In these areas,the lack of safe spaces for recreation means that violence, drug and alcoholuse, and insecurity hinder healthy development and lead to the weakening of thesocial fabric. This situation perpetuates negative cycles that generateinequality, among many other serious consequences for the community.

“男孩与女孩俱乐部”(Club de Niños y Niñas)远景

“男孩与女孩俱乐部”(Club de Niños y Niñas)俯视图

“男孩与女孩俱乐部”(Club de Niños y Niñas)项目针对这一社会情况,旨在为六至十八岁的孩子们提供一处安全健康的环境,在这里,他们可以无忧无虑地参加各类创造性,革新性,训练体力和智力的课外活动:这是一个能通过游戏的趣味性,艺术的创意性,以及学习的教育性进而提升正面价值,以及加速社区融合的空间。
The Club of Niños y Niñas is a project established to provide young people aged between 6 and 18 years’ old a safe and healthy environment for creative, innovative, physical, and intellectual after-school activities; this is a space that promotes positive values and community integration through play, art, and learning.

“男孩与女孩俱乐部”(Club de Niños y Niñas)近景

首先是地理位置。“男孩与女孩俱乐部”(Club de Niños y Niñas)位于特卡马克(Tecámac)和埃卡特佩克(Ecatepec)两个城市的交界处、在半径两公里(1.2英里)的圆形范围内,共包含15个低收入社区的汇聚地。这一区域位于由联邦内政部设立的特殊犯罪预防区内:特卡马克(Tecámac)和埃卡特佩克(Ecatepec)这两个城市的总人口为207万,属于墨西哥境内人口密度最大、社区环境最动荡同时也是犯罪率最高的社区。
The Club is locatedat the boundary between two municipalities, Tecámac and Ecatepec, with acatchment area of 15 low-income neighbourhoods within a two-kilometre(1.2-mile) radius. This area is located within a special crime prevention zoneset up by the federal Interior Ministry. Ecatepec and Tecámac have a combinedpopulation of 2,070,000, with the highest population density, insecurity andcrime levels in Mexico.

“男孩与女孩俱乐部”(Club de Niños y Niñas)近景

“男孩与女孩俱乐部”(Club de Niños y Niñas)近景

该项目最大的挑战之一,便是与社区的互动:获取邻居的信任对于项目本身的前期使用以及后期使用而言都至关重要。在前期的工程建设过程中,设计师积极参与社区活动,并为周围社区的居民们开展举办了各种活动,借此向他们介绍“男孩与女孩俱乐部”项目(Club de Niños y Niñas)的使命和计划。
除此之外,“男孩与女孩俱乐部”项目(Club de Niños y Niñas)在设计建造过程中的另一大挑战,是对有捐赠可能的建筑材料进行公开募集,找寻能够同各领域的专家以及承包商的合作的可能性、以及不断沟通协商,以得到各大公共和私人机构的支持。
One of the mostrelevant challenges was interaction with the community: it was essential togain the trust of the neighbors. During the construction process, we wereactive in the community offering various activities to the inhabitants of thesurrounding neighbourhoods, to introduce them to the mission and programs ofthe Club. Other relevantchallenge for the execution of the project was the search for the donation inkind of the construction materials, the collaboration of specialists andcontractors, as well as the support of public and private institutions.

“男孩与女孩俱乐部”(Club de Niños y Niñas)近景

“男孩与女孩俱乐部”(Club de Niños y Niñas)近景

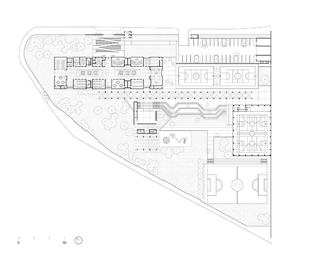
该项目的整体空间结构可分为三座建筑体:A栋是教育用楼:主要容纳各类教室,以及音乐,美术和计算机等教学空间,同时还配置有校用厨房,图书馆和多功能室。作为单层的建筑结构开发的A栋,设计师在此处设计出两座紧紧相邻的中央庭院,从视觉上来看,可以理解为一个和建筑本体分离开的,相对独立的室外空间。
The project wasdivided into three buildings: Building A the educational building, housingclassrooms and spaces for music, art and computers, as well as a kitchen,library, and multipurpose room. Developed in a single-level volume, the building has two adjoining central courtyards understood visually as a single space.

“男孩与女孩俱乐部”(Club de Niños y Niñas)内景

“男孩与女孩俱乐部”(Club de Niños y Niñas)近景

“男孩与女孩俱乐部”(Club de Niños y Niñas)内景

建筑的露台设计则旨在为住户提供充足的通风和照明——无需在楼体立面上刻意再去安装窗户,亦可实现特定的设计目标:为儿童提供更全面的保护。第一,利用这里提供的开阔视野,成年人,特别是老师们可以不必特意长途跋涉回到教室,就可以对教室进行全方位监督,譬如保护教室设施免受可能的破坏和盗窃;而这种设计也能遮挡住教室里孩子们看向运动场和休憩区的视线,以防他们在课堂上被分散注意力。
The patio providesnatural ventilation and illumination without the need for windows on thefaçades, to achieve the following specific objectives: protecting children, asclassrooms can be supervised without needing to walk long distances;safeguarding classroom facilities from possible vandalism and theft; andpreventing the boys and girls being distracted during classes, by not providingviews towards the sports and recreational areas.

“男孩与女孩俱乐部”(Club de Niños y Niñas)教学楼近景

B栋是艺术用楼,相比于A栋,B栋主要用于举办频率较少的教学活动,譬如舞蹈课和武术课,同时亦是学生用于举办临时艺术展览和类似大型活动的多功能区。
Building B is thearts building. It is used for less academic activities: a hall for danceclasses, a dojo, as well as a large multipurpose area for students’ temporaryart exhibitions and similar events.

“男孩与女孩俱乐部”(Club de Niños y Niñas)夜景

B栋同时还设有半开放式礼堂,用于举办音乐演奏会,舞蹈表演以及各种学术演讲;在空间结构上,与通向中央露台的主楼梯以一种流畅地姿态紧紧相连。另一方面,B栋建筑还专门设计了为青少年人群使用的空间,从而让他们可以在更安全舒适的环境中充分放松身心;譬如说,在这里举行的一些培训课程和科普讲座,能够使年轻人充分了解吸毒,以及其他成瘾习惯的种种风险、又或是关于性教育和其他主题。
The building iscomplemented with a space designed exclusively for teenagers, who can relax ina safe environment; training sessions and talks are held here to inform youngpeople about the risks of taking drugs and other addictions, as well as sexeducation and other topics. The building alsohas a semi-open auditorium for music recitals, dance performances and all kindsof talks, and is fluidly connected with the main staircase leading to thecentral patio.

“男孩与女孩俱乐部”(Club de Niños y Niñas)走廊内景

“男孩与女孩俱乐部”(Club de Niños y Niñas)走廊内景

“男孩与女孩俱乐部”(Club de Niños y Niñas)走廊内景

“男孩与女孩俱乐部”(Club de Niños y Niñas)走廊内景

C栋则是运动用楼,它的构造主体由能够容纳各种体育活动和运动赛事的巨大屋顶空间组成。因为它锯齿形屋顶设计的结构,位置和形态,从而使这一座朝北建筑保证最充足而自然的采光。
Building C is thesports building and consists of a large roofed space adaptable to all kinds ofactivities and sports. This building’s north-facing orientation providesnatural lighting thanks to its saw- tooth roof.

“男孩与女孩俱乐部”(Club de Niños y Niñas)C栋内景

“男孩与女孩俱乐部”(Club de Niños y Niñas)C栋内景

A栋,B栋和C栋这三座建筑之间由一条有顶棚的走廊相连,该走廊作为导向轴对整个空间进行了组织和整合;它主要由24个椎弓形椎骨的元素组成,是整座建筑的最核心的“脊柱”。拱廊是以露石混凝土作为主要材质,通过巧妙的几何结构的形态呈现的拱形结构。24个构筑模块,每一块都象征着一根人类的脊椎骨。设计师旨在通过这种隐喻的表达,反映出这样一种教育思想:即全面的教育和培训是实现更美好未来的基础。
The three buildingsare connected by a covered corridor that functions as a guiding axis and toorganize the overall space. This element—composed of 24 vertebrae in the formof arches—is the back- bone of the architectural design. The arcade is aningenious geometric structure of exposed concrete arches. Each of the 24modules represents a human vertebra reflecting the idea that comprehensiveeducation and training is the foundation for a better future.

“男孩与女孩俱乐部”(Club de Niños y Niñas)远景

总而言之,“男孩与女孩俱乐部”(Club de Niños y Niñas)项目中,囊括了各种运动和休闲区域,如篮球场、足球场、广场、公园和花园,以及开阔的广场和楼梯;它们塑造出生动丰饶自然景观的同时,彼此相连,互通有无,呈现出一种开放而自由的空间特质。感谢众多为这一崇高事业做出贡献的公司和个人的慷慨相助,这座建筑得以成为现实。
The project iscompleted with various sports and recreational areas: basketball courts, soccerpitches, squares, parks and gardens, as well as broad esplanades and stairwaysthat sculpt the natural topogaphy and that flow into adjacent spaces, open andfree of definition. The building becamea reality thanks to the generosity of numerous companies and individuals whocontributed to this noble cause.

“男孩与女孩俱乐部”(Club de Niños y Niñas)轴视图

“男孩与女孩俱乐部”(Club de Niños y Niñas)平面图


项目基本信息

项目名称:男孩与女孩俱乐部
项目类型:委托/教育
项目面积:3,500 sqm
项目位置:墨西哥,墨西哥州,圣托马斯·奇科诺拉,特卡马克山
施工状态:完成
完成年份:2019
建筑设计:Centro de Colaboración Arquitectónica (CCA), Bernardo Quinzaños, Ignacio Urquiza
项目楼层:1
设计团队:Mauricio Garcia-Noriega, Tania Coronado, Ana LauraOchoa, Sebastian Gnaedig
项目客户:男孩与女孩俱乐部
承包商:Grupo PC - CARSO
设计顾问:DECSA - Arq. Ricardo Camacho;BVG - Ing. Fernando Ventura
摄影支持:Onnis Luque, Arturo Arrieta, Jaime Navarro
获奖记录:2018年,在“UTOPÍA”竞赛获得了“ Arch Days CDMX” 项目荣誉奖;同年,第16届威尼斯国际建筑双年展的“拉丁美洲青年建筑师”竞赛中获得荣誉奖;2019年,荣获Obras杂志“城市设备”类别的“ 2019年度最佳作品” 奖;2019年,获墨西哥城双年展第四届建筑奖,并于“第四届墨西哥城建筑双年展”获得“教育”类荣誉奖;2019年在美国纽约 2019最佳设计奖获《建筑师报》“教育”类别项目荣誉奖;同年获得第三届青年建筑师双年展的“教育”类荣誉奖。


Name:Club de Niños y Niñas
Type:Comissioned
Use:Educational
Area:3,500 sqm
Location:Lomas de Tecámac, Estado de México, México
Status:Built
Year:2019
Architects:Centro de Colaboración Arquitectónica, BernardoQuinzaños, Ignacio Urquiza
Levels:1
Design Team:Mauricio Garcia-Noriega, Tania Coronado, Ana LauraOchoa, Sebastian Gnaedig
Client:Club de Niños y Niñas (Boys and Girls Club)
Constructor:Grupo PC - CARSO
Other Specialists:DECSA - Arq. Ricardo Camacho;BVG - Ing. Fernando Ventura
Photographer:Onnis Luque, Arturo Arrieta, Jaime Navarro
Awards  :
Honorable Mention in thecontest «UTOPÍA», Arch Days CDMX, for the project «Club de Niños y Niñas».Ciudad de México, México, 2018.
Honorable mention inthe “Young Architects in Latin America” competition, 16th InternationalArchitecture Venice Biennale, for “Club de Niños y Niñas.” Venice, Italy, 2018.
«Obra del Año 2019»Prize from “Obras” Magazine, in the «Urban Equipment» category. Mexico City,2019.
Honorable mention“Education” category, Fourth Architecture Mexico City Biennale, for the “Clubde Niños y Niñas” project. Mexico City, 2019.
«Best of Design 2019» Honorable mention from The Architect´s Newspaper, “Education” category, forthe «Club de Niños y Niñas» project. New York, USA, 2019.
Honorable mention“Education” category, 3rd Biennale of Young Architects, for “Club de Niños yNiñas.” Mexico City, 2019.

凡注明“国际设计网”的所有文章,及本网站上的项目案例,未经本网授权不得转载、摘编或利用其它方式使用。
已经授权者,应在授权范围内使用,并注明“来源:国际设计网”。违反上述声明者,本网将追究其相关法律责任。