首页 > 作品 > 正文

Behnisch Architekten | KIT能源实验室2.0Behnisch Architekten | KIT能源实验室2.0

2020-08-07 发布


“静谧夜色下
它是科技和美学的集成艺术品”

-卡尔斯鲁厄理工学院(KIT)的能源实验室2.0-
Energy Lab 2.0

卡尔斯鲁厄理工学院(KIT)能源实验室2.0 远景

卡尔斯鲁厄理工学院(KIT)的能源实验室2.0,是一个智能平台,旨在探索未来能源系统中各个组件之间的相互作用,特别是通过整合电力生产中所使用的可再生能源,加速德国的能源转型——譬如说将电气,热能和化学能的流动以及新兴信息和通信技术被结合应用于一组设施中。项目的合作伙伴是亥姆霍兹中心,德意志联邦共和国国家航空和航天研究中心(DLR)和福尔辛格中心(FZJ)。
The Energy Lab 2.0 atKarlsruhe Institute of Technology (KIT) is an intelligent platform, set up toexplore the interplay of components in the energy systems of the future and inparticular to speed up the energy transition in Germany through the integrationof renewable energy in the production of electricity. Electrical, thermal andchemical energy flows, as well as new information and communicationtechnologies are combined in a cluster of facilities. Project partners are the HelmholtzCentres, the National Aeronautics and Space Research Centre of the FederalRepublic of Germany (DLR) and Forschungszentrum Jülich (FZJ).

卡尔斯鲁厄理工学院(KIT)能源实验室2.0 远景

668号建筑大楼位于以前是太阳能实验基地的校园北部,为这一位置这项研究提供了一个吸引人、高质量和灵活的地理环境。
The new construction ofbuilding 668 on a site formerly used for experiments with solar energy in thenorth of the Campus Nord provides an attractive, high-quality and flexible locationfor this research.

卡尔斯鲁厄理工学院(KIT)能源实验室2.0 远景

这一座独立式建筑拥有以聚碳酸酯作为主要材质制成的半透明围护结构,从而形成由同质化元素组成的外观,视觉上反衬其内部木质构筑呈现出熠熠闪光的美学效果,功能上因能够容纳宽敞的无柱的测试大厅(test hall),以及两层办公侧翼室,进一步满足了人员使用空间的种种需求。
The detached building hasthe appearance of a homogenous unit with a translucent building envelope madeof polycarbonate that allows the wooden construction on the interior to shimmerthrough and accommodates an ample, column-free test hall as well as a two-storeyoffice wing.

卡尔斯鲁厄理工学院(KIT)能源实验室2.0 近景

卡尔斯鲁厄理工学院(KIT)能源实验室2.0 近景

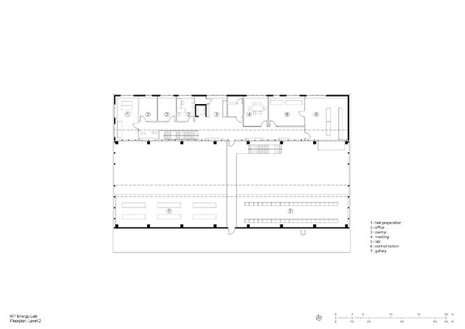
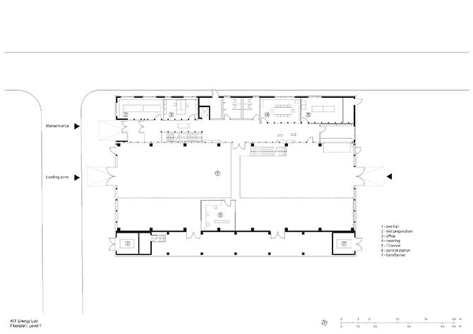
而连通这些不同空间的主要通道,是自西侧始途径中央区域的一条玻璃走廊,它沿着一面贯穿大楼不同区间的轻质玻璃立墙,将办公室和大厅相连,经过此处的人们,视线由此能毫无遮挡地穿过这些层叠的构筑物,饱览更为开阔宽广的风景;另一方面,玻璃走廊右侧则通向建筑的中心大厅,其余的办公空间则在它的左侧以一种齐整的布局依次排列;控制站、考试准备区、会议室和备用室也位于此处。而在建筑的中心区,分别安置有楼梯和电梯,通向设有额外办公室和准备室,以及一个带座位的小型员工厨房的上层空间;分配给测试区域的房间与大厅中庭相邻,这里提供给人们可以直接饱览邻近开放空间的开放视野。
The main approach isfrom the west via a glass vestibule in the central zone of access, which leads betweenthe offices and the hall, alongside a lightweight glass wall, into the building,allowing generous views between these building sections. The right side opensup onto a hall, while the office spaces are aligned on the left. The control station,the test preparation area, the meeting rooms and the auxiliary rooms are alsolocated here. In the building centre, a stairway and elevator lead to the upperstorey, where additional office and preparation rooms are located, as well as asmall staff kitchen with seating. The rooms allocated to the test areas areadjacent to the hall atrium and provide direct views into this open space.

卡尔斯鲁厄理工学院(KIT)能源实验室2.0内景

卡尔斯鲁厄理工学院(KIT)能源实验室2.0内景

卡尔斯鲁厄理工学院(KIT)能源实验室2.0内景

测试大厅中包括“循环耗能硬件”(PHIL),“智能能源系统控制实验室”(SESCL)以及用于实验测试的集合区域。大厅和锯齿形的屋顶都在最大程度上覆盖有半透明的聚碳酸酯板,这一结构保证了日光恒定地进入整个测试空间;而具有高热负荷的技术性建筑构件的相邻集合区域,不是建筑围护结构能源系统的一部分,而是通过其板条状外墙立面,确保建构构建的稳定散热和通风。
The test hall accommodatesthe areas “Power-Hardware in the Loop” (PHIL) and “Smart EnergySystem Control Laboratory” (SESCL) as well as assembly areas for tests. Thehall and the saw-tooth roof are generously clad with translucent polycarbonateplates, which allow a consistent amount of daylight to enter the entire testarea. Adjacent assembly areas for technical construction elements with largethermal loads are not part of the energy system of the building envelope but instead,with their slatted facade, ensure consistent heat removal and ventilation ofthe construction elements.

卡尔斯鲁厄理工学院(KIT)能源实验室2.0内景

卡尔斯鲁厄理工学院(KIT)能源实验室2.0内景

卡尔斯鲁厄理工学院(KIT)能源实验室2.0内景

卡尔斯鲁厄理工学院(KIT)能源实验室2.0内景

大厅所使用的材料结合了相邻的建筑物所具备的显著工业特征,以其作为参考进行演变和应用;窗户的开口设计在办公室墙面的特定位置,从而使其低调同时选择性地满足了室内空间的照明需求;在这里,木材和简单的玻璃立面是这处空间的主要元素,而大厅处则选择重点强调聚碳酸酯外墙和锯齿形屋顶的木质结构。
Thematerial of the hall incorporates references to the neighbouring buildings withtheir industrial character. Window openings set in specific places in theoffice facade enable a selective illumination of the interior spaces with theirunobtrusive design. While here wood and simple glass facades are the dominantdesign element, the hall is characterized by the polycarbonate facade and thewooden construction of the saw-tooth roof.

卡尔斯鲁厄理工学院(KIT)能源实验室2.0剖面图 CC

卡尔斯鲁厄理工学院(KIT)能源实验室2.0 一楼平面图 A
卡尔斯鲁厄理工学院(KIT)能源实验室2.0 一楼平面图 (黑白 + 图例)

卡尔斯鲁厄理工学院(KIT)能源实验室2.0 一楼平面图 (图例)

卡尔斯鲁厄理工学院(KIT)能源实验室2.0 二楼平面图

卡尔斯鲁厄理工学院(KIT)能源实验室2.0 二楼平面图 (黑白+图例)

卡尔斯鲁厄理工学院(KIT)能源实验室2.0 二楼平面图 (图例)


项目基本信息
项目名称:KIT能源实验室2.0
项目客户:卡尔斯鲁厄理工学院(KIT)能源管理
建筑设计:Behnisch Architekten
时间跨度:2015–2019
项目面积:1,730平方米/ 18,621平方英尺
项目体积:10,551立方米/ 372,609立方英尺
项目地址:赫尔曼·冯·海姆霍茨广场1 - 76344 艾肯斯坦- 利奥波德港,德国

Name:KIT Energy Lab 2.0
Client:Facility Management KIT
Architect:Behnisch Architekten, Stuttgart
Planning and Construction:2015–2019
Gross:1,730 sqm /18,621 sq.ft.
Volume:10,551 m³ / 372,609 cu.ft.
Address:Hermann-von-Helmholtz-Platz 1 76344 Eggenstein-Leopoldshafen,Germany

凡注明“国际设计网”的所有文章,及本网站上的项目案例,未经本网授权不得转载、摘编或利用其它方式使用。
已经授权者,应在授权范围内使用,并注明“来源:国际设计网”。违反上述声明者,本网将追究其相关法律责任。