首页 > 作品 > 正文

山水秀建筑事务所 | 张润大厦山水秀建筑事务所 | 张润大厦

2021-01-22 发布

图1 二层平台与小屋 ©摄影师梁山

高层建筑设计经常要面对“塔楼”和“裙房”的关系问题。这种分类来自两者之间明显的高低差异。张润大厦位于上海浦东新区张江高科园区金秋路和盛夏路交汇处,除了约4.2万m²的集中式研发办公楼之外,还要提供1500m²的商业配套空间。在标准化写字楼相对过剩的当下市场,办公塔楼落在商业裙房之上的常见建筑类型很难赢得租户的青睐,我们尝试改变塔楼+裙房的惯用建筑形制,在提升客户体验的同时为业主带来更高的附加值。

Design of High-rise buildings often brings up questions about the relationship between “Tower” and “Podium”. This pre-conceived classification comes from their obvious difference in height.  Zhang run Office Buildings is located in Zhang jiang High-tech Park, Shanghai. Besides 42,000-square-meter research and development office, the project also houses1,500-square-meter commercial facilities. In this project, we tried to change the typical Form-type of tower and podium to improve customer experience and bring extra value to the client.


图2  西侧外立面 ©摄影师梁山

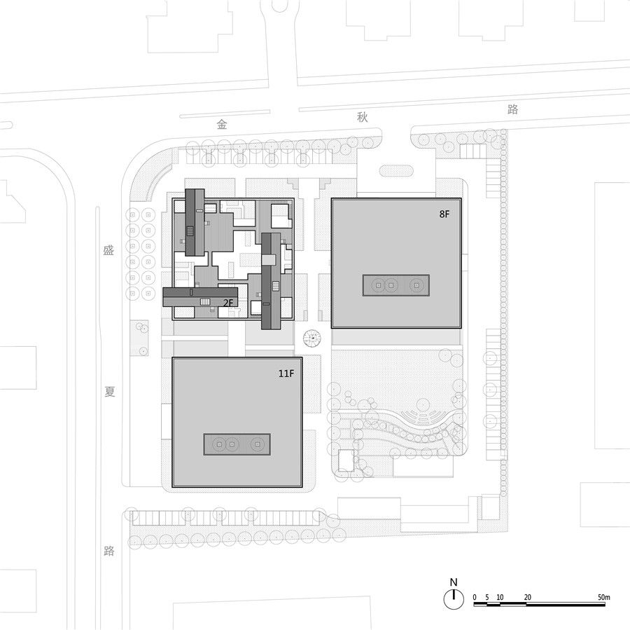
我们将办公塔楼和商业建筑彻底分开,去除垂直关联,让两者各自落地,使商业部分能够完全独立,与标准化办公形成差异化的体验互补。于是,方形场地被划分为四个象限,东北和西南安置两栋塔楼,形成东南和西北两个半围合的外部空间。其中,东南象限放空作为绿化庭院,而位居街角的西北象限则成为商业庭院。

We avoided designinga podium to house the commercial facilities like many other typical officeprojects. On the contrary, we separate the office tower and the commercialfacility. Standing independently, the commercial building can offer a spatialexperience that is different and complementary to that of the office tower. Therefore,the square site is quartered, and two office towers sit at the north-east and the south-west corner and semi-enclose the other two corners. The south-east corneris unoccupied and serves as a public green space, and the north-west corner is occupiedby the commercial courtyard.

图3 鸟瞰图 ©摄影师梁山

图4 商业庭院 ©摄影师梁山

层高4.4米的标准化大空间是业主需要的主要租售空间类型,因此,两座塔楼的建筑形制仍然遵循使用空间环绕核心筒的布置,北、东、西三面为一跨进深,南侧做两跨进深为研发办公提供更大的空间弹性。塔楼外围的结构柱和外墙窗框均外置,同时取消了转角柱和转角窗框,提高了内部空间周边的使用效率和角部的开放性。每层楼板均向外出挑,在窗外设置竖向的铝制压型穿孔遮阳板,南北板幅窄,东西板幅宽,在节能的同时兼顾了朝向的影响。

The 4.4-meter-high standardized large space is the main type of idealrental spacefor owners. Therefore, the architectural form of the two towersstill followsthe layout of using space around the core tube, with one span inthe north,East and West and two spans in the south, providing greater spaceflexibilityfor R & D office. At the same time, the corner column and thecorner windowframe are canceled, which improves the use efficiency of theinternal space andthe openness of the corner. Each floor is overhangingoutwards, and verticalaluminum profiled perforated sunshade is set outside thewindow. The width ofthe north and South panels is narrow, and the width of theEast and West panelsis wide, which not only saves energy, but also takes intoaccount the influenceof the orientation.

图5 办公大堂 ©摄影师梁山

图6 办公大堂 ©摄影师梁山


图7 办公塔楼室内 ©摄影师梁山

与一般裙房的做法不同,我们将塔楼的外墙设计延用到商业建筑,成为商业庭院的半通透围墙。这一方面化解了两层的商业建筑与8-11层办公建筑之间的形象协调问题,另一方面用院墙界定了场地,使仅有1500米的商业建筑成为一个与塔楼平面尺寸相仿的院落,并在两座塔楼和城市界面的围合下成为建筑群的空间核心。便利店、咖啡馆、联合办公和健身俱乐部等功能自由地分布在一层的方形盒屋和二层的坡顶小屋中,并与竹院、露天平台、连桥等构成了丰富的空间,使商业庭院拥有了办公塔楼所没有的亲切尺度和自然环境,在体验上与标准化的塔楼构成了互通有无、和而不同的平衡关系。

We keptthefacades of the commercial courtyard in consistency with that of theofficetowers, and designed them as translucent walls. This harmonizes theoutlook ofthe two-story commercial building with that of the office towers. Inthecommercial courtyard, convenient stores, coffee shops, joint offices andgymsoccupy the “boxes” on the ground floor and the “cottages” on the firstfloor.With the bamboo courtyards and wooden terraces, the commercial courtyardboastsits friendly scale and natural environment and creates a complementaryandbalanced relationship with the office towers.

图8 街角人视 ©摄影师梁山

图9 办公楼转角©摄影师梁山

在当今技术革新和健康生活的导向下,人在工作生活、社会交流、以及与自然关系上的不断变化,必然会激发城市与建筑在既有形制上推陈出新,张润大厦正是这种累积更新中的一步。

Leaded by the notion of technology innovation and healthy life, peopleareexperiencing ever-changingworking life, social communication andenvironmentalrelationship, which will definitely provoke new urban andarchitecturalForm-type.  Zhangrun Office Buildings isa step taken inthis process of upgrading.

图10 总图 Masterplan ©山水秀建筑事务所

图11 首层组合平面 Ground Floor Composite ©山水秀建筑事务所

图12 商业庭院二层平面 Commercial Courtyard 2F

图13 标准层平面 Typical Floor Plan


图14 剖面

图15 细部图1

图16 细部图2


项目信息
项目名称:张润置业项目
项目地址:上海市浦东新区张江高科技园区
项目功能:办公、商业
建筑面积:62439m²
业主单位:上海张润置业有限公司
设计单位:山水秀建筑事务所
设计团队:祝晓峰、庄鑫嘉、周延、盛泰、杜士刚、孟醒
合作设计院:上海中建建筑设计院
景观设计:上海迪弗建筑规划设计有限公司
室内设计:穆哈地设计
项目周期:2015年-2018年
凡注明“国际设计网”的所有文章,及本网站上的项目案例,未经本网授权不得转载、摘编或利用其它方式使用。
已经授权者,应在授权范围内使用,并注明“来源:国际设计网”。违反上述声明者,本网将追究其相关法律责任。