首页 > 作品 > 正文

Architects Group RAUM丨Mo-yeo-ga公寓Architects Group RAUM丨Mo-yeo-ga公寓

2021-03-02 发布

Mo-yeo-ga公寓鸟瞰© Yoon Joonhwan

Gathering, building a house, and living there together is like a dream of our life. Be that as it may, we are witnessing more and more houses are built for various purposes over time. Nevertheless, it is too difficult to gather all potential occupants so as for them to build a house by reflecting all opinions and needs of themselves. Particularly, any house where many families gather to live in downtown must be built as a multi-household housing type which is commonly called a “villa” in Korea. These houses often boil down to monotonous buildings by the land size, circumstances, or construction cost. For all that, “Mo-yeo-ga,” (which means a “Gathering House”) is to fulfill the romantic dream of a house in downtown according to the family constitution, lifestyle and budget without excessive construction cost involved.

齐聚一起盖房子并住在一起,就像是我们生活中的一个梦。随着时间推移,我们见证了越来越多的建筑出于不同的目的被建造出来。然而,想要收集并满足所有潜在居住者的需求并将他们的需求在建造房子中体现出来,是非常困难的。特别是,在市中心居住的多家庭居住的房子都必须是多户型的,在韩国这样的房子通常被称为“别墅”。这些房子往往归结为,由土地大小、环境或建筑成本决定的单一建筑。尽管如此,“Mo-yeo-ga”(意思为“聚会场所”)是根据家庭结构、生活方式和预算,并在不涉及过多建造成本的情况下,实现在市中心拥有房子的浪漫梦想。


Mo-yeo-ga公寓模型图©Architects Group RAUM


Mo-yeo-ga公寓立面© Yoon Joonhwan

It is not easy for young couples to move towards rural areas. Working in downtown and raising their children in the urban environment for good education, they hardly decide to leave the city. By the way, apartment housing is too dreary to make special memories of a house for children. So the parents wanting to bring up their children more like children gathered to build their house. They expected sensible child care and wanted to reveal special individualities. They wanted to create amiable side streets and neighborhood, and to let their children get along with many siblings and friends. So they started to make environment fit for the purpose with an architect, with whom they bought a land, and about 30 people of the eight families started to have a happy meeting.

对年轻夫妇来说,搬到偏远地方居住并不容易。在市区工作,并让他们的孩子接受到良好的教育,他们几乎不会离开城市。公寓过于沉闷,不能给孩子们留下特别的回忆。所以希望养育孩子的父母,就像是孩子们一样聚在一起盖房子。他们期待合理的托儿服务,并希望挖掘孩子们特殊的个性。他们想创造亲切友好的街道和邻里环境,让他们的孩子可以和邻里的孩子友好相处。于是,他们开始和建筑师合作,一起营造适合他们的环境,他们一起买了一块地,8个家庭约30人开始欢聚一堂。


Mo-yeo-ga公寓外观© Yoon Joonhwan

To answer the question “How do we want to live after building our house?”, they began to share their own ideas, situations, know-hows of child-care and the like, creating a small village which serves as the base for co-parenting. In so doing, they came to be intimate with others’ children and to make friends, brothers and sisters with someone. Each of their houses was designed with the structure and space they had aspired to have, reflecting each family’s singular lifestyle, so that the occupants found the space they had longed for, which would let them realize their own romantic dreams. As the architect, we designed multiple units concurrently to the budget of each household.

为了回答“建好房子后,我们想怎么生活?”这个问题,他们开始分享自己的想法、情况、育儿知识等,并创建了一个小社区,作为共同育儿的基地。这样一来,他们就和别人的孩子结交成朋友、兄弟姐妹。他们的每间屋子都按照他们向往的结构和空间设计,体现了每个家庭独特的生活方式,让居住人找到了他们向往的空间,实现他们自己的浪漫梦想。建筑师根据每户家庭的预算设计了不同的户型单元。


八户不同的户型©Architects Group RAUM

Particularly, to enable visual and spatial communications between the small spaces for children and their home units, such devices as terrace, yard, balcony, shared court, deck, swimming pool, and study room were scattered to be seen, enjoyed, and occupied in each space.

特别是,为了实现儿童小空间与家庭单元之间的视觉、空间交流,建筑师做了分散在每个空间里的露台、庭院、阳台、共享球场、木质平台、游泳池和书房等,以便住户观赏、娱乐和拥有。


书房© Yoon Joonhwan


阳台© Yoon Joonhwan


木质平台© Yoon Joonhwan

Also, not to cause a conflict between households over which floor, which location, and which style of house to own in one building, all eight units were designed to have their own advantages and charms. Starting with the method to make every unit enviable by other households, we created architecture and space. This made it possible for all units to have their own attractions and advantages, along with spatial distribution to which all households agree with satisfaction.

另外,为了避免在一栋楼的哪一层、哪一个位置、哪种风格的房子会引起住户之间的冲突,所有八个单元的设计都有自己的优势和魅力。建筑师的设计,让每一个单元都有其他住户羡慕的地方。所有家庭都有满意的空间分布。


各户空间分布©Architects Group RAUM


室内© Yoon Joonhwan


客厅© Yoon Joonhwan


餐厅© Yoon Joonhwan

Mo-yeo-ga is not the so-called “villa,” detached house or apartment housing. Nor is it categorically defined as a townhouse or a “sharehouse.” Rather, it is the property each household “own” their share or the detached house customized for each household, doubling as a townhouse and a neighborhood. Particularly, it is a new spatio-psychological urban housing where residents get along with their children’s friends, brothers and sisters living around. This will be a new model of urban housing in our society.

“Mo-yeo-ga” 不是所谓的“别墅”、 独立住宅或者公寓。它也不是联排别墅或者“共享住宅”。它更像是每户都能“拥有”自己份额的财产,或者是为每户定制的独立住宅,兼作联排别墅和邻里住宅。特别是,它是一种新型的空间心理学城市住宅,居住在这里的居民与其孩子的朋友、兄弟姐妹相处融洽。这将是我们社会一种新的城市住宅模式。


楼下玩耍的儿童© Yoon Joonhwan


夜晚的Mo-yeo-ga公寓© Yoon Joonhwan

设计图纸



Mo-yeo-ga公寓总平© Architects Group RAUM


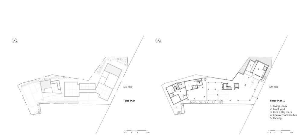
场地平面图&一层平面图©Architects Group RAUM



二层平面图&三层平面图©Architects Group RAUM


四层平面图&屋顶平面图©Architects Group RAUM


前立面&右立面©Architects Group RAUM


后立面&左立面©Architects Group RAUM

剖面A &剖面B ©Architects Group RAUM

项目信息
项目名称:Mo-yeo-ga公寓
项目位置:71-10, UN pyeonghwa-ro 76beon-gil, Nam-gu, Busan, Republic of Korea
场地面积:678.00㎡
建筑面积:819.83㎡
建筑层数:地上4层
建筑设计:Architects Group RAUM
主创设计:Oh sin-wook
设计团队:No jungmin, An shin, Yu Seongcheol, Yoon Jeongock, Choi yunjeong, Lim Ahyun, Kim Dayeong
施工建造:Concrete Workshop.ENC
设计时间:2016.11-2018.11
建造时间:2017.11- 2018.11


凡注明“国际设计网”的所有文章,及本网站上的项目案例,未经本网授权不得转载、摘编或利用其它方式使用。
已经授权者,应在授权范围内使用,并注明“来源:国际设计网”。违反上述声明者,本网将追究其相关法律责任。