首页 > 作品 > 正文

时境建筑 | 厦门英良石材自然历史博物馆时境建筑 | 厦门英良石材自然历史博物馆

2021-05-21 发布
英良石材自然历史博物馆中庭 ©Atelier Alter Architects

英良石材自然历史博物馆的业主在多年的石材业务中收集并保护了大量的化石文物,他们希望在集团总部的办公楼里引入一个博物馆用于展示化石的历史和研究化石的自然科学。

Over the years of stone mining, the manufacture has discovered numerous fossils. The manufacture decides to dedicate the headquarter building to a museum to tell the history of the fossils and the natural science of researching the fossil.

在对原有的办公楼空间的改造设计中包含了两个巨大的挑战:第一,如何区隔和连接内部办公和开放展览这两种对立的功能空间;第二,原建筑办公区主要靠内部中庭采光,博物馆功能的介入势必使原先十分有限的办公采光更加紧张。

There are two major challenges during the renovation process. The first one is the conflict between private headquarter and public museum. The second one is the direct sunlight gained at the atrium space. The addition of museum space will limit the deficient light to the office space even more.
改造前后 ©Atelier Alter Architects

轴测图 ©Atelier Alter Architects

古老岩石最先出现在大陆内部的结晶基底之中,这些古老的晶体经过长时间地壳变化产生的高温、高压、混合、沉积,最终形成现在石头的样子。我们通过对石材最原始的形态:“晶体结构”的解读中获得了新的建筑语言。

The archaic rock was first discovered at the crystalized base inside the landmass. Those crystalloids become how they look like today through a long term of high temperature, high pressure, mixture, and accumulation. The original form of the stone, its crystal structure, brings us a new architectural language.

晶体生成 ©Atelier Alter Architects

我们在中庭中引入三个相互穿插的晶体,它们有如金字塔般的锥筒,其倾斜的上外表面可以将一部分天光反射到中庭四周的办公室里,而在筒内,另外的一部分天光则可以直达一层的博物馆大堂。

We introduce three intersected crystalloids into the atrium space. The quadrangular pyramid light well stretches from the building roof to the first-floor ceiling to bring light into the first-floor museum atrium while the second-floor exhibition space and the rest of the office space are lite by the remaining portion of the building skylight, as well as the reflected light bounced by the tilted outer-surface of the light well.

天光分布 ©Atelier Alter Architects

围绕着这些垂直通高的晶体,一些横向的晶体与中庭纵向的晶体生长、穿插在一起形成了一个个的化石展厅,展厅的布局根据展览的时间和故事线索行进展开。这些水平的晶体沿着自身的生长方向也把一部分外立面上的室外的光线引入到博物馆展厅室内——最终这些横竖交错的晶体将光线、展览功能交织在一起。

Surrounding the vertical crystalloids, there are horizontal ones that keep growing, inserting, and finally form into various fossil showrooms. The layout of the showrooms determined by the time and storyline. The horizontal crystalloids also introduce the sunlight to the interior space along with their growing direction. In all, the tilted crystalloids interweave the sunlight and exhibition spaces.

穿插形成的各个展厅 ©Atelier Alter Architects

最终的改造呈现出这样一种形态,即之前横平竖直的楼板仿佛被多个晶锥方体穿透,原本正交系统的梁柱空间被转换成一个个神秘发光的晶体空间,当这些沉重的物体漂浮起来时,反重力空间将观众置于一个未知的空间中,仿佛直接来自一部科幻电影。

The finalized renovation appeared a form of a penetrated Cartesian grid. The orthogonal system of columns and beams transformed into each illuminated but mysterious triangulate space. As the heavy mass floating up, the anti-gravity space places the audience in an unknown space seemly coming straight from a Sci-fi film.

中庭,仿佛身处科幻场景 ©Highlite Images

中庭空间被晶体的内和外分割成博物馆和办公两个功能,博物馆内部呈现出不停生长的晶体内部的复杂交错。在这里,原始的石头晶体转译成的空间正在与作为展品的远古化石进行着跨时空对话。

The inside and outside of the atrium spaces were divided into the museum and office space, while the interior space of the museum appears into a complicated inside of the crystal with endless growth. The archaic stones crystallized into different architectural spaces while communicating with the spaces as the exhibits across time and spaces.


中庭 ©Atelier Alter Architects


办公层 ©Atelier Alter Architects

博物馆整个空间没有多余的装饰,用最原始的表达方式记录沉积亿万年的古生物印记,只使用了一个简单的构成元素——墙壁,这种简单性带来的是空间、尺度和光线体验的前置。墙壁不再仅仅是功能的分割界面,它的使用被重新创造:不仅带来平静冷峻的洞穴般的气氛衬托年代久远的地质化石展品;晶体的墙壁内部是博物馆的天花,墙壁外部承载了办公楼层的反光板功能,同时间隔了公共和私密两个分区。

There is no other decoration within the exhibition space. The only element used to express the imprint of the eons of the deposit is a series of the tiled wall. This simplicity brings visitors a prepositional spatial, dimensional, and sunlight experience. The walls are not only the boundaries of different function, but also reformed into a calm and cold, cave-like environment, which make the geological fossil looks even more aged. The inner wall of the crystalloid is the ceiling of the museum at the same time. The outside of the wall functions as the reflected board of the office building, while it separates private and public spaces.


展览 ©Atelier Alter Architects

由于墙体使用了大量倾斜的表面构成,所以空间无法用传统的二维坐标轴方式来进行表达,角度标注也无法精确地传达这些空间当中的面和线,我们最终采用了三维坐标系的方法对图纸进行标注,而施工现场则使用全站仪对三维空间坐标点精确还原,确保每个线条的精度,才不会导致任何一个放样点错位就会影响到其它相关平面的精度。整个项目的材料低调朴素,为的是凸显空间中的光源对空间形体的塑造,为这些来自远古的化石提供了合适的展览环境。

It is difficult to express controlled points in space through a two-dimensional Cartesian grid. We come up with a three-dimensional coordinate system for spatial demarcation, and the design was completely understood on the construction site. With the help of the total station apparatus, the spatial control points in the model were mapped out precisely in space, then construction becomes possible. The material used within the project is quite and sententious in order to highlight how sunlight touches the spaces and provide an appropriate exhibition environment to the archaic fossils.


前厅 ©Atelier Alter Architects

一层展开 ©Atelier Alter Architects

二层展开 ©Atelier Alter Architects


爆炸分解 ©Atelier Alter Architects

项目图纸

总平 ©Atelier Alter Architects

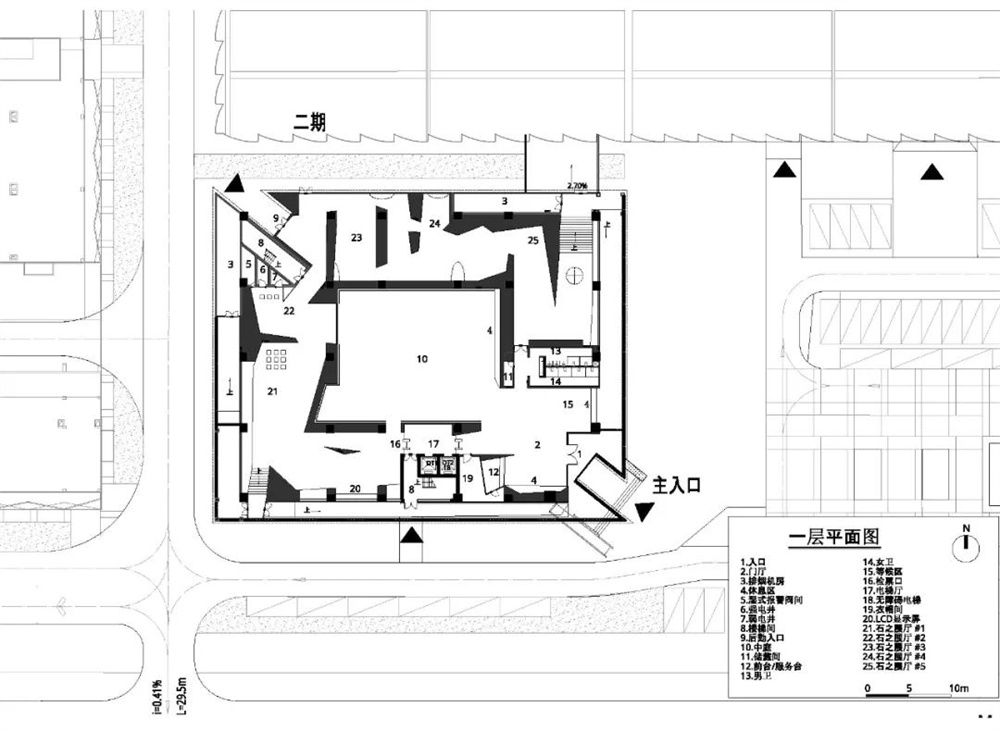
一层平面图 ©Atelier Alter Architects

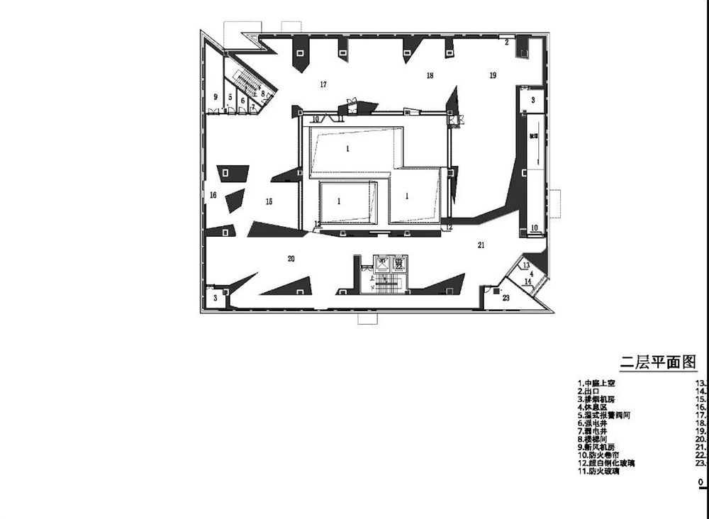
二层平面图 ©Atelier Alter Architects

墙体分解 ©Atelier Alter Architects

改造前后剖面图 ©Atelier Alter Architects

项目名称:英良石材自然历史博物馆
项目位置:中国 福建
项目类别:博物馆
室内设计:Atelier Alter Architects 时境建筑
主设计师:张继元、卜骁骏
设计团队:李振伟, 张家赫, 郑来荣, 黄博, 马磊磊
机电设计:成工
项目客户:英良集团
建筑面积:2600㎡
建成时间:01/2020
项目摄影:Atelier Alter Architects 时境建筑
图片版权:Atelier Alter Architects 时境建筑


凡注明“国际设计网”的所有文章,及本网站上的项目案例,未经本网授权不得转载、摘编或利用其它方式使用。
已经授权者,应在授权范围内使用,并注明“来源:国际设计网”。违反上述声明者,本网将追究其相关法律责任。