首页 > 作品 > 正文

园冶杯参赛作品 | 三上建筑事务所:日本日立市立日高小学校园冶杯参赛作品 | 三上建筑事务所:日本日立市立日高小学校

2021-09-01 发布

夜幕下的日高小学 ©堀内広治

项目概况

该校位于世界500强日立公司创始地日立市。作为日高小学教学楼改建项目,三上建筑在有限的场地上设计了这个占地面积小、室内移动距离短的特色矩形教学楼。同时还通过设置两个中庭以保障不能朝南教室的自然采光与通风。

设计理念

“培养儿童未来梦想之校”是三上对该校的设计理念。它将作为日立市的象征,唤起孩子们对未来的憧憬与对求知的渴望。教学楼部分向外突出的表现形式带给人以跃动感,同时还因视角的不同创造出各种丰富表情。

新教学楼正门 ©堀内広治

教学楼侧影、竖井楼梯 ©堀内広治

设计亮点

1. 有效利用建筑用地
该教学楼是一个紧凑型三层建筑,在将未来体育馆重建列入视野的同时,有效利用了场地资源。三上将施工量控制在最小,以最大程度减少对周围的影响。

紧凑型教学楼外观 ©堀内広治

布局图 ©三上建筑

・新教学楼避开现有设施,建立在场地中央。这样既能实现上课施工两不误,又因位置处在南北方向而抑制了施工对近邻的影响。

・考虑到当地的日照情况,操场位于学校南侧的旧教学楼处,以防止冬季土地冻结。

・保证新教学楼与北面邻近土地持有一定的距离,尽量减少建成后对周围的压迫感、日照及噪音的影响。

・在目前“新教学楼-现有体育馆-游泳池” 的位置关系基础上,满足将来体育馆的重建需求。

2. 于教学楼中央设置交流空间

在教学楼中央设有一个“日高学童大厅·多媒体中心”作为供孩子们交流互动的空间,并以其为中心在周围设置了各个教学机能设施。

多功能大厅、图书室 ©堀内広治

功能示意图 ©三上建筑

・“日高学童大厅”(多功能大厅/午餐厅)及“多媒体中心”(图书室/微机室)设于教学楼中央位置。

・“功能教室区”根据各年级使用频率的不同安排在不同楼层。

・“校内托管班”与“家长会议室”设置在距停车场较近位置,方便接孩子放学以及学校管理规划。

・“普通教室区”将高年级设在上层,低年级设在下层。

・“管理办公区”位于学校入口处可将校内一览无余,“保健室”设在操场对面,便于及时处理学生伤病。

・“特别支援教室”与办公区相邻,分设有启智、情感、语言班。

3. 创建明亮舒适的校园环境

教学楼的每一层都是一个开放性空间,视野良好。通过在楼内设置“两个室外中庭”将自然采光与通风引入室内,实现了这个明亮舒适的与自然一体化的空间。

中庭 ©堀内広治

空间结构图 ©三上建筑

・通过两个3层高露天竖井中庭的设置,创建出一个有自然采光· 通风的敞亮舒适的内部空间。

・以玻璃墙围绕中庭,令各个角度视野良好,营造出开放性的空间氛围。

4. 合理的建筑结构与设备配置

教学楼由内含平柱的抗震墙与内含平梁的空心楼板构成。与建筑外周垂直的墙壁是一个个独立的墙体,人们的视线可一眼望穿至中庭。三上将自己意图的表达保留到最小,让该结构自身成形出其建筑的骨骼。

玄关 ©堀内広治

走廊 ©堀内広治

普通教室 ©堀内広治

功能教室(左上英语教室、右上家庭科教室、左下音乐室、右下实验室) ©堀内広治

午餐厅、微机室 ©堀内広治

特别支援室、教师办公室 ©堀内広治

保健室、托管班 ©堀内広治

正门出入口 ©堀内広治




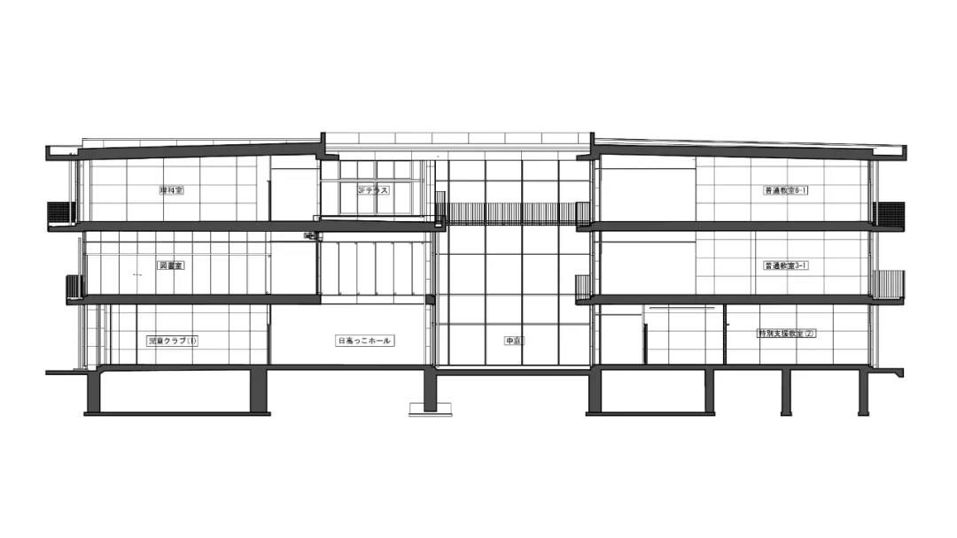
项目图纸

1F、2F、3F平面图 ©三上建筑

东侧立面图 ©三上建筑

西侧立面图 ©三上建筑

南侧立面图 ©三上建筑

北侧立面图 ©三上建筑

东西方向剖面图 ©三上建筑


南北方向剖面图 ©三上建筑


项目名称:日立市立日高小学
项目分类:公共建筑
项目位置:日本茨城县日立市
项目业主:日立市
场地面积:20,609.80 ㎡
建筑面积:2,519.20 ㎡
容积率:12.22%
地上层数:3
地下层数:0
设计公司:株式会社 三上建筑事务所
合作公司:金箱构造设计事务所
主创设计师:益子一彦
设计团队:三上建筑事务所
施工单位:りんかい日産・三秀・久下谷JV
设计周期:2018年4月-2019年3月
施工周期:2019年9月-2020年12月
项目摄影:堀内広治

凡注明“国际设计网”的所有文章,及本网站上的项目案例,未经本网授权不得转载、摘编或利用其它方式使用。
已经授权者,应在授权范围内使用,并注明“来源:国际设计网”。违反上述声明者,本网将追究其相关法律责任。