首页 > 作品 > 正文

Morphosis | 南京扬子江国际会议中心Morphosis | 南京扬子江国际会议中心

2021-12-21 发布
在整个项目的设计及创作过程中,我们非常清楚会议中心有着其使用功能之外的教育意义及象征意义。它呼应着场地和城市的肌理,并将成为中国乃至全球的设计、性能、工程之典范。
—— 李宜声

"In our design process and throughout the project’s creation, we were very aware that the Convention Center will play a role that exceeds its functional purpose to become a didactic and expressive symbol, both locally in its response to site and the city, as well as nationally and globally as a standard for design, performance, and engineering."
——Eui-Sung Yi


项目介绍
Project Description

扬子江国际会议中心是世界一流的全球互联互通枢纽,也是南京西跨长江向江北新城市中心扩张的重要资产。

地处中国东部沿海城市带与长江三角洲枢纽,南京市江北新区近年来正在成为全新的环球商业中心。扬子江国际会议中心作为新区核心的旗舰项目,旨在打造世界级的会议及大型活动场所,同时彰显南京生态友好的可持续发展理念。





南京扬子江国际会议中心 - 远观

扬子江会议中心毗邻扬子江,项目设计综合了建筑、景观及流线规划,呼应着南京通江达海、天下文枢的地理及人文特征,与江北新区蓬勃的商业图景、鼓楼区厚重的历史风韵交相辉映。

会议中心不仅以扬子江为名,其设计理念及建筑形式也是从大江大河中汲取灵感:扬子江属长江下游河段,一直以来都是中国的交通干线,带动了六朝古都的历史发展。与之相似,会议中心同时也作为两岸企业家峰会永久会址,搭建起江北新区与世界联系的桥梁,支撑着区域发展和全球交流。


会议中心与长江


南京扬子江国际会议中心 - 爆炸图

在建筑形式上,起伏的裙楼与立面呼应了长江上的层波叠浪,泛光的钛板屋顶反映着江面粼粼波光。高耸、开阔的塔楼仿佛江上穿梭的中式帆船,扬帆弄影、乘风破浪。



层波叠浪


扬帆弄影

会议中心的裙楼中,会议中心面积超过36,000㎡,而不同的功能需求决定了建筑的分区设计。

单体塔楼是一座拥有340间江景客房的酒店。

裙楼巨大的会议区由钢框架和空间矩形桁架构筑,形成一系列围绕中央拱廊布局且尺度各异的会议与展示空间。



南京扬子江国际会议中心 - 入口


南京扬子江国际会议中心 - 室外阶梯

200米的东西向中央通廊将裙楼分为南北两翼。廊内天桥纵横交错,构成裙楼的交通枢纽,同时连通VIP入口及酒店塔楼。

巨大的天窗为裙楼主入口及中庭提供自然光,也方便访客仰视塔楼。建筑内外使用相同的金属表皮,在模糊室内外空间的同时,塑造出别具匠心的流畅空间曲线。


中央通廊结构



中央通廊



从中央通廊可仰望塔楼

为更好地融入江北都市区及扬子江畔的双重肌理,扬子江国际会议中心外观兼具都市建筑特征与波浪型曲线。

塔楼北面朝向城市,立面采用金属遮阳系统,使用了阳极氧化铝板材料,能够实现复合效应:白天,金属幕墙用于遮阳、提高能效;夜晚,集成在幕墙上的照明系统则赋予大楼独特的外观。

塔楼南面朝向扬子江,蜿蜒起伏的立面与江滨自然风光相呼应。其幕墙由90,000余块特制的阳极氧化铝板及玻璃构成。



阳极氧化铝板幕墙 - 形成肌理、强化符号


玻璃幕墙 - 连通江畔胜景

项目的景观设计遵循“海绵城市”原则,对径流进行环保管理,这对于滨河场地尤为重要。

得益于建筑的高性能幕墙及环保景观,扬子江国际会议中心获得了中国绿色建筑认证体系的最高等级——中国绿色建筑三星认证。

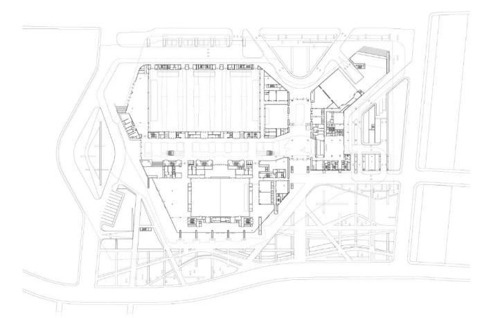
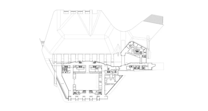
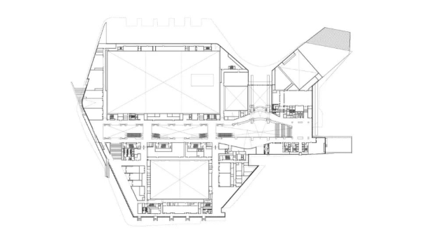
项目图纸
Drawings





建筑立面图 © Morphosis


建筑剖面图 - 西南 © Morphosis




建筑平面图 © Morphosis

项目团队
Credits



设计团队
Morphosis Team
创意指导 Design Director:汤姆.梅恩 Thom Mayne  
项目总监 Partner-in-Charge:李宜声 Eui-Sung Yi
项目经理 Project Manager:陈瀚旭 Hann-Shiuh Chen、王依宁 Yining Wang
项目建筑师 Project Architect:伍美玉 Carolyn Ng
项目设计师 Project Designer:Daniel Pruske、Karim Saleh、王景瀚 Christopher Wang
项目成员Project Team:Paul Choi 、Stuart Franks 、Farah Harake 、Salvador Hidalgo、Janice Kim、广明业 Edmund Kwong
项目助理 Project Assistants:Tony Avila 、Javier Benavides、Lauren Buntemeyer、陈祥语 Ray Chen、Andres Conejero、Colleen Fellows、Fredy Gomez 、Alessio Grancini 、Eric Meyer、Nicole Meyer、Anthony Mull、Danny Ortega、Francois Rucki、Kevin Sani、Yasmine Suleiman
数字技术团队 Advanced Technology:Kerenza Harris、Stan Su、Atsushi Sugiuchi、Joe D’oria
可视化制作 Visualization:Jasmine Park、Ilko Iliev

项目顾问
Consultants
当地合作设计单位 Local Architect:北京市建筑设计研究院有限公司
景观设计单位 Landscape Architect:杭州园林设计院股份有限公司
结构设计单位 Structural Engineer:北京市建筑设计研究院有限公司  
机电设计单位 MEP Engineer:北京市建筑设计研究院有限公司
地勘工程 Civil Engineer:江苏省地址工程勘察院
绿建工程 Sustainability / LEED:北京市建筑设计研究院有限公司与其他单位
室内装饰设计 Interior Design:北京建院装饰工程设计有限公司
艺术品设计 Art Design:北京建院装饰工程设计有限公司
幕墙工程 Façade:旭密林能源科技(上海)有限公司  
室外灯光工程 Lighting:凯森光艺术设计有限公司 / 北京太傅照明设计有限公司
声学工程 Acoustics:北京市建筑设计研究院有限公司  
音视频及舞台 Audiovisual and Stage:中广电广播电影电视设计研究院
智能化工程 IT:北京市建筑设计研究院有限公司  
建筑法规顾问 Code:北京市建筑设计研究院有限公司  
消防顾问 Fire Consultant:中国建筑科学研究院建筑防火研究所
标识工程 Signage / Graphics:杭州吉承文化艺术有限公司
经济专业 Cost Estimator:北京市建筑设计研究院有限公司
风洞实验 Wind Tunnel Consultant:北京交通大学
厨房设计 Kitchen Designer:北京快易服科技有限公司

施工团队
Construction Team
工程管理单位 Construction Management:南京城市建设管理集团有限公司
总包 General Contractor:中国建筑第八工程局有限公司
幕墙施工单位 Façade Construction:中建深圳装饰有限公司、中建八局装饰工程有限公司

项目信息
Project Info
地点:中国,南京
业主:南京市江北新区公共工程建设中心
场地面积:87,400㎡
建筑面积:187,200㎡
项目类型:政府办公、商业、会议、展示、酒店
建筑用途:大型展览和会议空间、酒店及配套设施、办公室
设计时间:2018年-2020年
建造时间:2019年-2021年
绿色建筑评级:中国绿色建筑评价标识·三星标识
建筑摄影:田方方(除署名外)
地上体量:132,700㎡,总高157m
地下体量:54,450㎡,总高7.5m
展览空间:9,000㎡
主会议厅:3,000㎡
主宴会厅:2,700㎡
钛板屋顶:50,000㎡
单体桁架长度:130m
最长跨度:72m
钢材总量:46,000吨
Project information
Client: Nanjing Jiangbei New District Public Construction Management Center
Site Area: 8.74 hectares
Size: 187,200 gross m²
Program: Large scale exhibition and conference spaces, hotel and amenities, office
Design: 2018-2020
Construction: 2019-2021
Green Building Evaluation: 3-Star Rating GBEL
Type: Governmental / Commercial / Hospitality
Photographer: Studio FF
Key Project Numbers:  
Above grade height: 157m  
Above grade area: 132,700㎡
Below grade depth: 7.5m  
Below grade area: 54,450 ㎡
Exhibition area: 9000 ㎡
Main conference Hall: 3000 ㎡
Main banquet hall: 2700 ㎡
Roof titanium panel area: 50,000 ㎡
Single truss length: 130m
Longest span: 72m
Total steel: 46,000 tons

凡注明“国际设计网”的所有文章,及本网站上的项目案例,未经本网授权不得转载、摘编或利用其它方式使用。
已经授权者,应在授权范围内使用,并注明“来源:国际设计网”。违反上述声明者,本网将追究其相关法律责任。