首页 > 作品 > 正文

Foster Partners | Narbo Via古罗马文物博物馆Foster Partners | Narbo Via古罗马文物博物馆

2022-02-18 发布

建筑外观  ©Nigel Young / Foster + Partners


室内空间  ©Nigel Young / Foster + Partners

“艺术对城市生活至关重要,而文化建筑有潜力去重塑和再生城市的‘场所感’,打破物质和社会层面的障碍。该博物馆将新旧元素融合,更新了人们对博物馆的认知。这里不仅是一个反思历史的地方,同时也给后代提供学习探索的机会。”

"The arts are vital to the life of a city and a cultural building has the potential to reinvent and regenerate its 'sense of place', to break down physical and social barriers. Bringing together the old and the new, Narbo Via will renew the image of the museum, becoming not just a place for reflection but a creator of knowledge for future generations."
——诺曼·福斯特

Narbo Via是纳博讷的一座全新的古罗马文物博物馆,位于Robine运河附近,现已正式对外开放。该建筑由福斯特及合伙人事务所设计,将成为城市入口的一个新地标。

Narbo Via – a new museum of Roman antiquities in Narbonne – has officially opened following an inauguration ceremony attended by the conseil de la Region Carole Delga. The building, designed and engineered by Foster + Partners is set to become a new landmark at the entrance to the city, on a site adjacent to the Canal de la Robine.

场地平坦,项目带有一种冷静克制的氛围感,是城市入口处纪念碑式的建筑。该建筑室内包括永久性和临时展览的画廊、多媒体教育中心、礼堂、餐厅和书店,以及用于研究、修复和储藏的空间。外部设有花园和露天剧场,用于户外表演。

Raised on top of a podium, the museum provides a sense of restrained civic and architectural monumentality at the entrance to the city. The building incorporates galleries for permanent and temporary exhibitions, a multimedia education centre, auditorium, restaurant and bookshop, as well as research, restoration and storage facilities. Externally there are formal gardens and an amphitheatre for outdoor performances.


建筑外观  ©Nigel Young / Foster + Partners

景观加强了建筑与附近运河的联系,创造出一个宁静的自然环境。受经典法式花园和罗马庭院的启发,博物馆室外设有露天圆形剧场,为户外活动提供场所。设计还希望打造一个友好的、园林式的入口,通过一条新的入口坡道将博物馆与Robine运河的河边纤道联系起来,缩短建筑与市中心的距离。

The landscaping reinforces the connection with the canal to create a tranquil natural setting. Inspired by formal French gardens and the Roman courtyard, the museum's grounds feature an amphitheatre for open-air displays and events. The design anticipates a welcoming, landscaped entrance via a new ramp that links the museum to the existing towpath along the Canal de la Robine. This will create a serene pedestrian connection to the city centre, which will now be only a short walk from the museum.




建筑外观  ©Philippe Chancel

整个建筑被一片巨大的混凝土屋顶覆盖,为内部保温隔热,利于整体的环保策略。高窗与采光天井为室内引入光线,屋顶一直延伸至室外人行道上方,形成遮阳顶棚。

The museum spaces are unified beneath a concrete roof canopy, which provides thermal mass and contributes to a comprehensive environmental strategy. The canopy is elevated above a clerestory, punctuated with light wells, and it extends to provide a canopy over the walkways around the museum.

可持续环境策略是设计重要的一部分。受罗马技术的启发,建筑中的大多数服务设施都设置在地下空间。冷空气被低速低空送出,在保持环境舒适的同时,减少了需要调节的空气量。高层高形成的巨大的空间体量,形成了热飞轮效应,自然地推动着热空气向上流动,并最终排出。

As part of its sustainable environmental agenda, inspired by Roman technology, the majority of the services in the building are contained within a subterranean void. The cool air is pushed out at a low level and at low velocity, allowing a smaller volume of air to be conditioned, while maintaining a comfortable environment. The large spatial volumes formed by the high ceilings create a thermal flywheel effect that naturally pushes warm air upwards, from where it is exhausted.



建筑外观  ©Nigel Young / Foster + Partners

建筑材料使用一种朴实的表达方式,还原其本身的质感。现场浇筑并夯实的彩色干拌混凝土,形成了一种自然的分层肌理,展示博物馆的考古性质,也让人联想到罗马混凝土建筑外观。结构设计也秉承简洁的设计理念,墙体坚固耐用,起到良好的隔热和承重作用。它们支撑着上部的钢筋混凝土梁的网格系统,其上再设置钢筋混凝土双T型梁支撑着屋顶。外墙的玻璃开窗则由螺栓固定在混凝土墙上。

The architecture is informed by an honest approach to materials which extends to the expression of the coloured concrete walls. Layers of dry-mixed concrete were tamped into place on-site, the resultant stratification calls to mind not only the archaeological nature of the museum, but also the inherent appearance of Roman concrete. The structural response also follows a similar approach that is underpinned by simplicity. The walls are solid, thermally insulated and load bearing. They support the roof with reinforced concrete double-T-beams that span onto a grid of reinforced concrete beams. The glazing around the enclosure simply bolts directly into the concrete walls.


屋顶结构  ©Nigel Young / Foster + Partners



结构细部  ©Nigel Young / Foster + Partners

该项目的核心是一片“宝石墙”。它在博物馆的中心自然地形成了一个分隔线,将公共画廊与更私人的修复空间分开。参观者可以透过文物间的缝隙一瞥考古学家和研究人员的工作。灵活的展示框架使展品可以根据需求布置,以积极的方式带动人们的求知欲。

The centrepiece of the museum is a 'Lapidary Wall', which forms a natural boundary at the heart of the museum, separating the public galleries from the more private restoration spaces. Visitors can glimpse the work of the archaeologists and researchers through its mosaic of stone and light. The flexible display framework allows the reliefs to be easily reconfigured and used as an active tool for learning.



“宝石墙”  ©Nigel Young / Foster + Partners


“宝石墙”细部  ©Philippe Chancel

福斯特及合伙人事务所的设计总监Spencer de Grey说:“纳博讷曾是地中海沿岸的一座令人引以为傲的港口城市,至今仍具有重要的历史意义。因此,该项目需要将考古学与这段历史在当代背景下进行灵活转译。我们创造了一种简单而灵活的建筑语言,将人们与历史文化联系在一起,使这座博物馆“鲜活地”存在。”

Spencer de Grey, Head of Design, Foster + Partners, said: "Roman Narbonne was a proud port city along the Mediterranean, and remains a place of significant historical importance. The Narbo Via project, therefore, involved the deft navigation of archaeology and ancient history in a contemporary context. Our approach has been to create a simple yet flexible architectural language, one imbued with a sense of monumentality and links to history and culture – essential for this museum of ‘living’ antiquity."



室内空间  ©Nigel Young / Foster + Partners

事务所合伙人Hugh Stewart补充道:“将这座城市最具历史价值的古代藏品融入当代背景下,是一个很有意思的挑战。我们与Adrien Gardère合作设计的这个垂直的展示墙,贯穿了整个内部空间,使展品成为博物馆的核心。”

Hugh Stewart, Partner, Foster + Partners, added: "The idea of bringing the city's remarkable ancient collection into an unashamedly contemporary context was a fascinating challenge. Working with Adrien Gardère, we developed the concept of a vertical display wall running the full width of the building, which puts the exhibits at the heart of the museum."


室内空间  ©Philippe Chancel

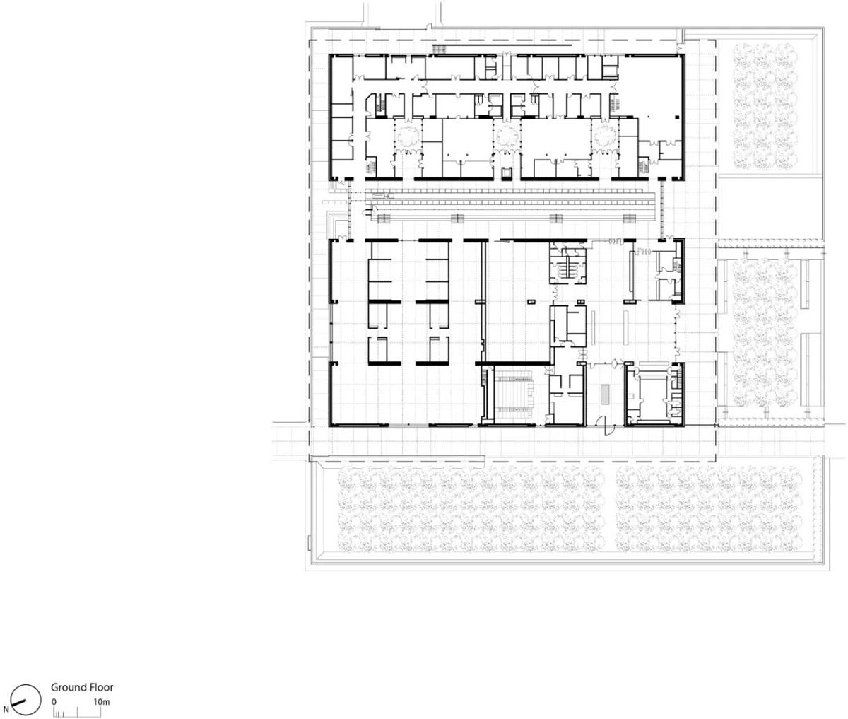
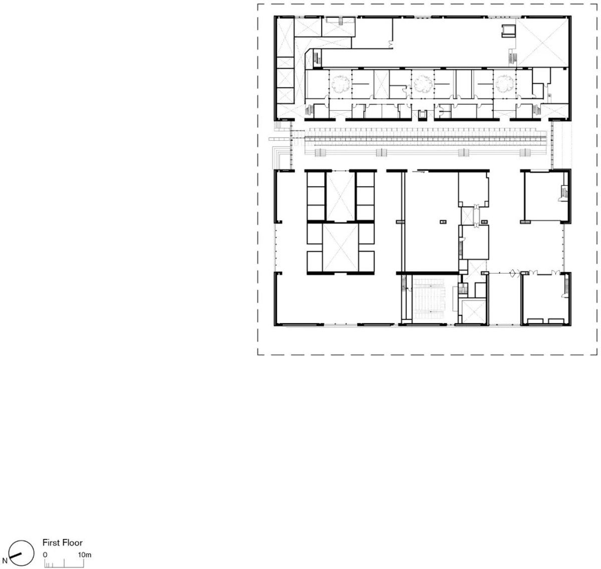
设计图纸



平面图 ©Foster + Partners


首层平面彩图 ©Foster + Partners


立面图 ©Foster + Partners



剖面图 ©Foster + Partners

项目信息
Appointment: 2012
Completion: 2021
Area: 8,765m²
Capacity: 1,500 building population
Client: Région Languedoc Roussillon
Museography and Exhibition design: Studio Adrien Gardère
Structural Engineer: Foster + Partners, SECIM
Quantity Surveyor: Gardiner & Theobald
Environmental Engineer: Foster + Partners, Technisphere
Landscape Architect: Urbalab
Lighting Engineer: George Sexton Associates

凡注明“国际设计网”的所有文章,及本网站上的项目案例,未经本网授权不得转载、摘编或利用其它方式使用。
已经授权者,应在授权范围内使用,并注明“来源:国际设计网”。违反上述声明者,本网将追究其相关法律责任。