首页 > 作品 > 正文

PPAA | Lluvia _雨PPAA | Lluvia _雨

2022-12-27 发布

Lluvia is a single-family residence located in Jardines del Pedregal, Southern Mexico City, in a neighborhood first developed by Luis Barragán in the 1940s. Originally intended to knit together city and landscape now the site has neighboring constructions.

Lluvia是一个位于墨西哥城南部Jardines del Pedregal的独栋住宅,位于一个由Luis Bar ragán在20世纪40年代首次开发的社区。最初的目的是将城市和景观结合在一起,现在基地有了邻近的建筑。


Inspired by the volcanic site found in Jardines del Pedregral, we took this physical element into account when choosing the material palette of the house. The entire exterior of the volume is dark to create a dialogue between environment and strucuture.

受Jardines del Pedregral火山遗址的启发,我们在选择房子的材料面板时考虑了这种物理元素。整个体量的外部是黑暗的,以创造环境和结构之间的对话。






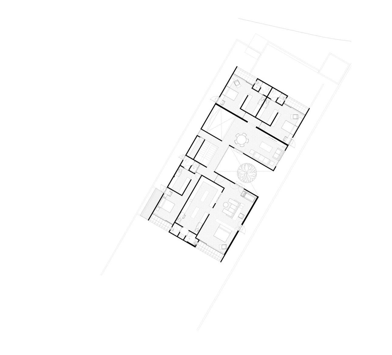
Our main intention was to merge sections of the main vegetation with the interior of the house. The result a solid volume that incorporates subtractions along the main axis. With the idea of discovering the garden as you move along the house, small courtyards and double heights gave the sense of small pieces of nature framed by punctual openings that break the geometric form while generating a visual and physical connection to nature.

我们的主要意图是将主要植被的部分与房子的内部结合起来。其结果是一个沿主轴方向有减法的实体体积。当你沿着房子移动时,你会发现花园的想法,小庭院和双层高度给人一种小块自然的感觉,通过点状的开口,打破几何形式,同时产生与自然的视觉和物理连接。












In contrast the interior is light to create an intentional contrast between inside and outside. Public and service areas are located on the ground floor. Service areas include a six-car garage, two bathrooms, a utility room, and a laundry room. Public spaces include an open living room, dining room, kitchen, family room, and outdoor terrace that connect with the courtyards.

相比之下,室内光线充足,有意营造出室内外的对比。公共和服务区域位于一楼。服务区域包括一个可停放六辆车的车库,两个浴室,一间杂物间和一间洗衣房。公共空间包括开放式客厅、餐厅、厨房、家庭活动室和与庭院相连的户外露台。



凡注明“国际设计网”的所有文章,及本网站上的项目案例,未经本网授权不得转载、摘编或利用其它方式使用。
已经授权者,应在授权范围内使用,并注明“来源:国际设计网”。违反上述声明者,本网将追究其相关法律责任。