首页 > 作品 > 正文

APOLLO Architects & Associates | ESPACE住宅APOLLO Architects & Associates | ESPACE住宅

2022-12-27 发布
©Masao Nishikawa

This small two-story, wood-frame house is tucked into a downtown residential neighborhood. The clients, a couple with minimalist taste and few superfluous possessions, wanted a private home on the compact lot that prioritized a spacious atmosphere over physically large rooms.   
这栋小小的两层木结构房屋坐落在市中心的一个居民区。客户是一对极简主义品味的夫妇,几乎没有多余的财产,他们希望在紧凑的地块上有一个私人住宅,优先考虑宽敞的氛围,而不是物理上的大房间。

©Masao Nishikawa

©Masao Nishikawa

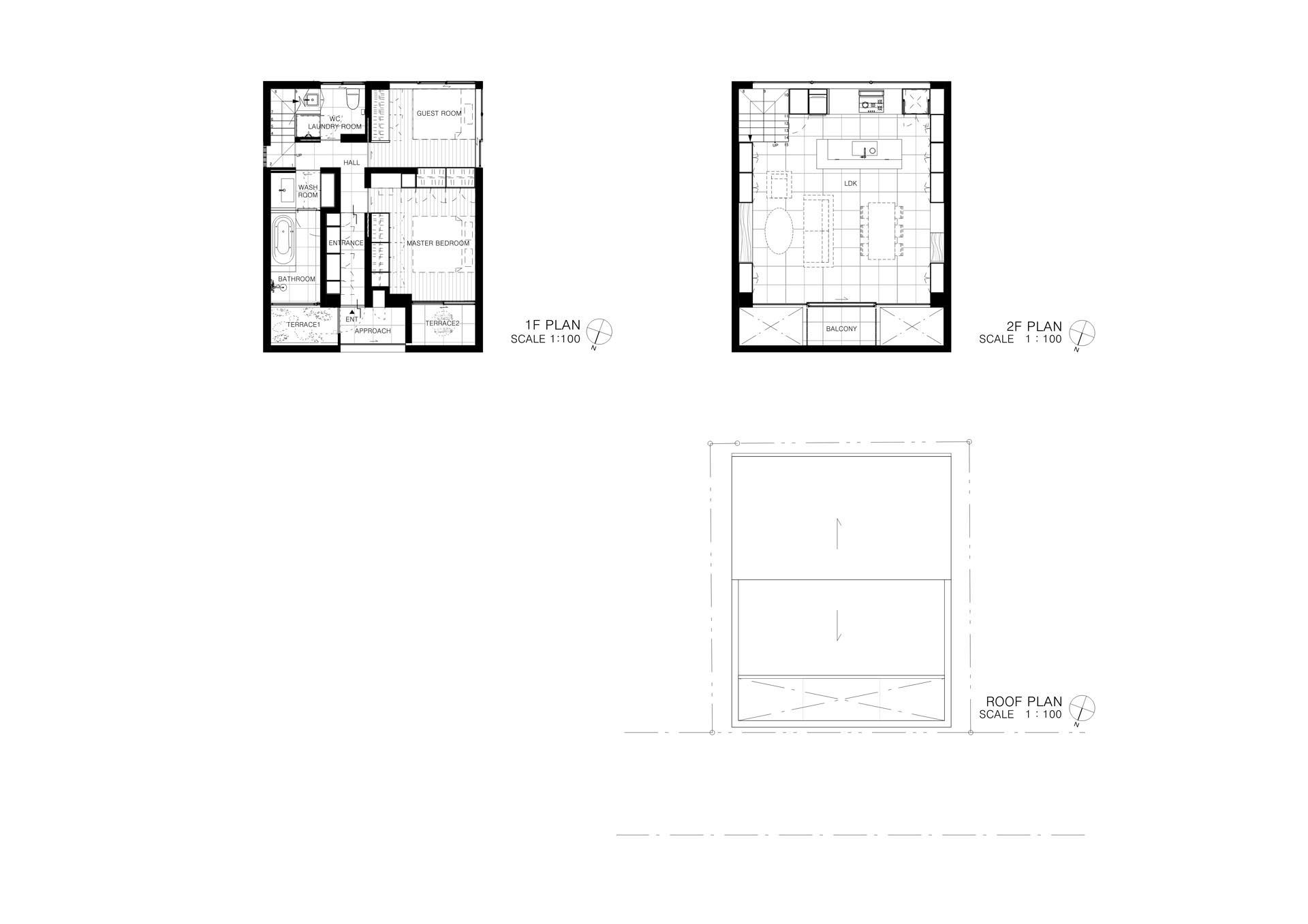
The lot abuts the north side of a narrow road and is hemmed in by closely packed houses. To preserve privacy in this environment, the façade facing the street has no windows; all natural light comes from a courtyard and clerestory windows. We used a rigid wood frame to make the most efficient use of the frontage. The gate-shaped frame avoids the need for load-bearing walls on the north side of the house, allowing for three windows to occupy the full width of that side, with a row of clerestory windows above. Built-in wall storage takes advantage of the shape of the frame’s posts, making the space functional even without additional furniture.
这块地紧靠一条狭窄道路的北侧,周围是密密麻麻的房屋。为了在这个环境中保护隐私,外观面向街道没有窗户;所有的自然光都来自庭院和天窗。我们使用了一个坚硬的木框架,以最有效地利用正面。门形框架代替了房屋北侧的承重墙,三扇窗户与房屋的北立面等宽,上面有一排天窗。内置的壁式存储空间利用了框架柱子的形状,即使没有额外的家具,也使空间具有功能性。

©Masao Nishikawa

©Masao Nishikawa

©Masao Nishikawa

©Masao Nishikawa

©Masao Nishikawa

©Masao Nishikawa

©Masao Nishikawa

©Masao Nishikawa

©Masao Nishikawa

The most striking feature of the house, however, is the daylighting. In the family room that occupies the whole of the second floor, the three north-side windows let in soft, diffuse light. Meanwhile, direct southern sunlight shines in along the sloped roof and is reflected off a wall into the room, brightening the area near the windows. This light filters through floor grating onto the first floor, where the bedroom and bathroom are located. In addition, light pours through clerestory windows running the length of the north side, casting beautiful gradations on the sloped gable ceiling and ensuring that the kitchen at the back of the house receives adequate light.
然而,这所房子最显著的特点是采光。在占据整个二楼的家庭活动室中,北侧的三扇窗户让柔和的漫射光线进入室内。与此同时,南方的直射阳光沿着倾斜的屋顶照射进来,并被墙壁反射到房间里,照亮了窗户附近的区域。光线通过地板格栅过滤到一楼的卧室和浴室。此外,光线通过北侧的天窗倾泻而下,在倾斜的山墙天花板上投射出美丽的层次感,确保房子后面的厨房获得充足的光线。

©Masao Nishikawa

©Masao Nishikawa

©Masao Nishikawa

©Masao Nishikawa

©Masao Nishikawa

By treating the entire building as a reflector, we succeeded in creating a separate universe of diffuse light that makes the rooms feel spacious and echoes the uniquely tranquil character of the residents.
通过将整个建筑作为一个反射器,我们成功地创造了一个漫射光的独立宇宙,使房间感觉宽敞,并呼应了居民独特的宁静性格。



Credit Information
Architecture : Satoshi Kurosaki / APOLLO Architects & Associates
Photography : Masao Nishikawa
Videographer : Seiya Aoki / GRAFILM

Project Outline
Location : Shinagawa ward, Tokyo
Date of Completion : 2022. 07
Principal Use : Private housing
Structure : Timber
Site Area : 77.68m2
Scale : Two stories above ground
Building Area : 50.79 ㎡
Total Floor Area : 98.02 ㎡
Design Period : 2018.12-2019.03
Construction Period : 2019.04-2022.07
Structural engineer : Masaki Structure(Kenta Masaki)
Facility engineer : Naoki Matsumoto
Lighting design : SIRIUS LIGHTING OFFICE Inc.
Construction : Kimura Ryozo Construction
凡注明“国际设计网”的所有文章,及本网站上的项目案例,未经本网授权不得转载、摘编或利用其它方式使用。
已经授权者,应在授权范围内使用,并注明“来源:国际设计网”。违反上述声明者,本网将追究其相关法律责任。