首页 > 作品 > 正文

Sukunfuku Studio | 坎塔布里亚岩石艺术中心Sukunfuku Studio | 坎塔布里亚岩石艺术中心

2023-05-15 发布
所有摄影图片版权归属于Adrià Goula
all images © Adrià Goula



中心位于卡斯蒂略山的山腰下,周围环绕着蜿蜒而上的通往以它命名的洞穴的公路。项目需要在一个地形复杂、被美丽的自然景色所环绕的场地上,建造相对较大的建筑体量。

The Visitor´s Center is located on the hillside of Monte Castillo, within the area of influence of the caves that bear his name and surrounded by the access road to them. The program demanded a relatively large volume, on complex ground and immersed in a landscape of great beauty.


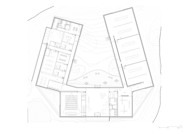
这个方案被分成三个独立的部分:接待和服务区、展览区和受限区。三个体量在一个中央庭院周围进行布置和连接,形成了一个“C”形,面对地块的自然倾斜,围合了一个“绿色看台”的建筑。 山成为方案的一部分,成为主角来安排建筑,邀请游客外出,作为中心活动的外部空间。










The program is divided into three separate blocks: reception and service area, exhibition area and restricted area. The three volumes are articulated and arranged around a central courtyard that distributes and connects the different spaces. The resulting volume is a "C" shape facing the natural slope of the plot, which closes the building creating a "green tribune". The mountain becomes a part of the program, the protagonist articulating the building, inviting the visitor to go out and acting as an external space associated with the activities of the center.







这栋建筑由两个不同的层次组成。地面层采用混凝土墙壁在地基区域实现支撑,而面向庭院和出入口区域的立面则以玻璃为主要材料。在这个基础之上,石质屋顶使三个体量连接在一起,同时折叠成为立面的一部分,产生了色彩对比、尺度和纹理。建筑物与周围的自然环境融为一体,并与地形互动,打破体量以适应环境。


The building is executed in two different layers. The lower part is resolved with concrete walls in the areas that contain the land, while the façades that overlook the patio and the access area are mainly glazed. On this base sits the stone roof, which sews the three volumes together and folds to become part of the façade, generating a chromatic contrast, scale and texture. The building integrates and interacts with the natural environment around it, creating a relationship with the topography, breaking its volumes to adapt to the environment.








项目图纸和模型
Drawings and models

©Sukunfuku Studio
©Sukunfuku Studio
©Sukunfuku Studio
©Sukunfuku Studio
©Sukunfuku Studio
©Sukunfuku Studio

©Sukunfuku Studio
©Sukunfuku Studio


©Sukunfuku Studio


©Sukunfuku Studio
©Sukunfuku Studio
©Sukunfuku Studio
©Sukunfuku Studio

项目信息

名称:坎塔布里亚岩石艺术中心 | @cuevascant
地点:Puente Viesgo,坎塔布里亚,桑坦德,西班牙
客户:坎塔布里亚文化部
建筑:sukunfuku studio | @sukunfuku.studio
团队:Miguel Huelga, Iria de la Peña
施工经理:José Manuel Gómez Illa
结构工程:Estática Ingeniería SL
机械工程:A6 Ingeniería SL
背景合作者:莫妮卡-佩雷斯
景观顾问:Arantxa Zabalza
窗帘设计: Akane Moriyama工作室
承包商: Siec SA
摄影:Adrià Goula | @adriagoulaphoto
地块面积:10.000平方米
总面积:1678平方米

Project information

location: Puente Viesgo, Cantabria
client : Consejería de Cultura de Cantabria
plot area: 10.000m2
total area: 1678m2
Team:
sukunfuku studio, Miguel Huelga + Iria de la Peña
Construction manager: José Manuel Gómez Illa
Structure Engineer: Estática Ingeniería SL
Mechanical Engineer: A6 Ingeniería SL
Context collaborator: Mónica Pérez
Landscape consultant: Arantxa Zabalza
Curtain Design: Akane Moriyama Studio
Contractor: Siec SA
凡注明“国际设计网”的所有文章,及本网站上的项目案例,未经本网授权不得转载、摘编或利用其它方式使用。
已经授权者,应在授权范围内使用,并注明“来源:国际设计网”。违反上述声明者,本网将追究其相关法律责任。