首页 > 作品 > 正文

wooom studio 物禾木木 | Stamp咖啡wooom studio 物禾木木 | Stamp咖啡

2023-05-18 发布
© 季光

stamp意为邮票、印记、印戳。主理人希望他的空间和咖啡能给大家留下一抹印记,欧洲留学的经历让他更喜欢一些有沉淀感的东西,但同时希望这里保有包容和开放的态度。


店面概览 © 季光

入口细部 © 季光

此案例采用大面积暗色调的复古绿配以深色原木和铝制波浪板,碰撞出不一样的化学反应。我们设计了三扇3轨绿色木质玻璃移门以及木质卡座折叠窗,让室内和室外的空间能够得到完全的交互,结合户外泥土地铺设的草坪形成的一块户外可露营的区域,满足了店铺的社区属性。


入口处的绿色木质玻璃移门以及木质卡座折叠窗 © 季光

从吧台望向入口 © 季光

从吧台望向就餐区及卫生间入口 © 季光

入口旁边的书架 © 季光

绿色木质玻璃移门的细部 © 季光

在吧台区域我们专门设置了一个业主的折叠自行车的存放展示区,这对尺寸的要求非常极致。我们将3米长的意式吧台以及手冲吧台平行放置于进门正对区域,利用二楼搭建部分的围栏,自然形成整个店铺的门头,左右两边的洄游动线设置客座区,通过一个回转楼梯链接二楼的小小烘培及间以及其余客座区。

吧台区域的折叠自行车存放展示区 © 季光

展示区特写 © 季光

一层座位 © 季光

楼梯 © 季光

二层概览 © 季光

二层概览 © 季光

二层座位细部 © 季光

墙面使用艺术涂料以及稻草漆,达到不同层次的肌理效果。我们使用大量的材质穿插,铝制波浪板,不锈钢板,艺术玻璃,水洗石等。在空间进行无秩序穿插。

咖啡吧台 © 季光

手冲吧台细部 © 季光

卫生间细部 © 季光

项目图纸
Drawings


一层平面图 © wooom studio


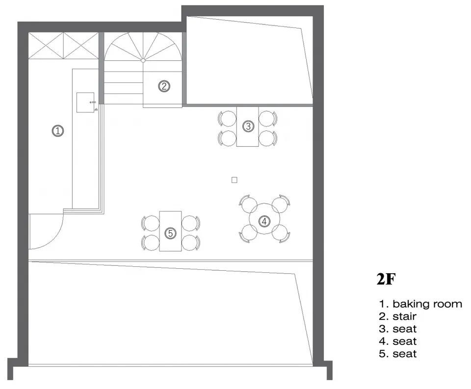
二层平面图 © wooom studio


项目信息
项目名称:stamp cafe
项目类型:餐饮空间设计
设计方:wooom studio
项目设计:付楚楚
完成年份:2022
设计团队:wooom studio
项目地址:成都
建筑面积:100㎡
摄影版权:季光
材料:艺术涂料、稻草漆、艺术玻璃
Project Information
Project name: stamp camp
Project Type: Catering Space Design
Designer: wood studio
Project Design: Fu Chuchu
Completion year: 2022
Design team: wood studio
Project address: Chengdu
Building area: 100 square meters
Photography copyright: Ji Guang
Materials: Art paint, straw paint, art glass

凡注明“国际设计网”的所有文章,及本网站上的项目案例,未经本网授权不得转载、摘编或利用其它方式使用。
已经授权者,应在授权范围内使用,并注明“来源:国际设计网”。违反上述声明者,本网将追究其相关法律责任。