首页 > 作品 > 正文

三文建筑 | 永春县新时代农村社区三文建筑 | 永春县新时代农村社区

2023-05-19 发布
项目缘起

2019年,为了改善农民住房条件,满足农民对美好生活的向往,同时探讨新闽派民居建设的可能性,福建省住建厅提出了建设“新时代农村社区”的设想。住建厅在福建全省挑选了10个县的10个不同场地,并从全国邀请了10支有经验的设计团队进行设计。本项目就是其中的一个,也是最新完成的一个。

Project Origin

In 2019, in order to improve the housing conditions of farmers, meet their aspirations for a better life, and explore the possibility of building new Fujian style residential buildings, the Fujian Provincial Department of Housing and Urban Rural Development proposed the idea of building "A New Era Rural Community". The Department has selected 10 different sites from 10 counties in Fujian Province and invited 10 experienced design teams from across the country for design. This project is one of them and the first one completed.


项目位于泉州市永春县吾峰镇吾西村。基地为山坡地,高差较大,山顶有树林和水塘,山脚下与村庄原有建筑相连。
项目用地采用点状供地方式,统一规划设计,村民自己出资建设住宅,公共部分由政府出资建设。The project is located in Wuxi Village, Wufeng Town, Yongchun County, Quanzhou City. The base is located on a hillside with a large elevation difference. There are forests and ponds on the mountaintop, and at the foot of the mountain, it is connected to the original buildings of the village. The project adopts a point based land supply method, with unified planning and design. Villagers themselves contribute to the construction of residential buildings, while the public part is funded by the government.




本案旨在设计和建设一个模式可复制、可广泛推广的新乡村社区,它包括:一系列新乡村民居,公共服务建筑,乡土景观和室外公共空间。福建省住建厅和建筑师希望这个新社区可以具备如下属性:

-尊重地域特色,并通过活态继承和转译完成新民居对传统民居的迭代,使之既保留地方记忆,又满足新生活需要。
-以孝悌文化,邻里关系为基石,通过住宅内外空间的布局,社区公共空间的营造,重建乡村家庭关系,兄弟关系,邻里关系。


Purpose and Significance

The aim of this project is to design and build a replicable and widely-promoted new rural community, which includes a series of new rural residences, public service buildings, local landscapes, and outdoor public spaces. Fujian Provincial Department of Housing and Urban Rural Development and the architects hope that this new community can possess the following attributes:

- Respect regional characteristics, and complete the iteration of new residences to traditional residences through dynamic inheritance and translation, preserving local memories while meeting new living needs.
- Based on the culture of filial piety and brotherhood, reconstruct rural family relationships, brotherhood relationships, and neighborly relationships through the layout of residential interior and exterior spaces, and the creation of community public spaces.


- 尊重环境,重视乡土,合理运用地方材料和工艺,地方植被和物种,形成符合乡村特征的人地环境关系。
- 探讨居住和经营的共生可能性,在满足村民居住诉求的同时,设计为未来民居转化为民宿等经营性业态做准备,为村民提供增收的可能性。
- 重视共同缔造,政府、建筑师、施工人员、本地村民形成一种共谋、共建、共享关系。
- 统一规划设计,统一实施,严格控制用地规模、层数和单方造价,建造村民建得起、住得惯的和美新住宅。

- Respect the environment and native land, attach importance to local materials and techniques as well as local vegetation and species, to form a human-land relationship that conforms to rural characteristics.
- Explore the possibility of coexistence between living and business, and prepare for future transformation of residential properties into business formats such as homestays while meeting the demands of villagers for living, providing the possibility of additional income for the villagers.
- Emphasize co-creation, and form a relationship of cooperation, co-construction, and sharing among the government, architects, construction workers, and local villagers.
- Unify planning and design, implement uniformly, strictly control the scale of land use, number of floors, and construction cost per square meter, and build new beautiful houses that the villagers can afford to build and live in.



新乡村民居
项目位于福建泉州市永春县。传统民居风貌极具地域特色:建筑色彩以暗红、白、青灰为主,建筑高低起伏,屋顶层次丰富,外立面使用地方有色的暗红色砖,并配以镂空的砖饰等。
设计强调对地方传统民居风貌特征的活态继承与创新,如屋顶形式、色彩比例的控制、立面虚实的运用、特殊形态围墙的使用等,既保留了历史记忆,又在新的尺度上使建筑形态合理、得体。

New Rural Residence
The project is located in Yongchun County, Quanzhou City, Fujian Province. The traditional residential architecture is of highly regional characteristics, with building colors dominated by dark red, white, and bluish-gray. The building has undulating heights and rich roof levels, with local dark red bricks used on the exterior facade and complemented by hollow brick decorations. The design emphasizes dynamic inheritance and innovation of the traditional residential architectural style, such as controlling the roof form, color proportion, and using virtual and real elements on the facade, and applying special-shaped walls, which preserves historical memories while making the architectural form reasonable and appropriate on a new scale.


强调使用地方材料,就地取材,并运用地方工艺进行建构。如瓦片选择永春县岵山镇传统工艺瓦片,挡墙的毛石采用当地花岗岩。在降低物流引起的碳排放同时,也促进了地方建材产业的发展。强调工匠精神,工匠选择当地有经验老工匠和当地村民,在保留和发展传统工艺的同时,也增加了村民收入。

Emphasis is placed on the use of local materials, local construction techniques, and local craftsmanship. For example, the tile selection uses traditional tiles from Hushan Town, Yongchun County, and the stone walls use local granite. This not only reduces carbon emissions caused by logistics but also promotes the development of local building materials industries. The spirit of craftsmanship is emphasized, as well, with experienced old craftsmen and local villagers selected to preserve and develop traditional techniques while increasing villagers' income.


房屋的楼梯、楼板采用了装配式技术,节省了支模拆模的费用及工期,是农房建设的一种有益尝试。

The house's stairs and floors use modular assembly technology, which saves the cost and time of formwork dismantling and is a beneficial attempt in rural housing construction.


合理的空间组织
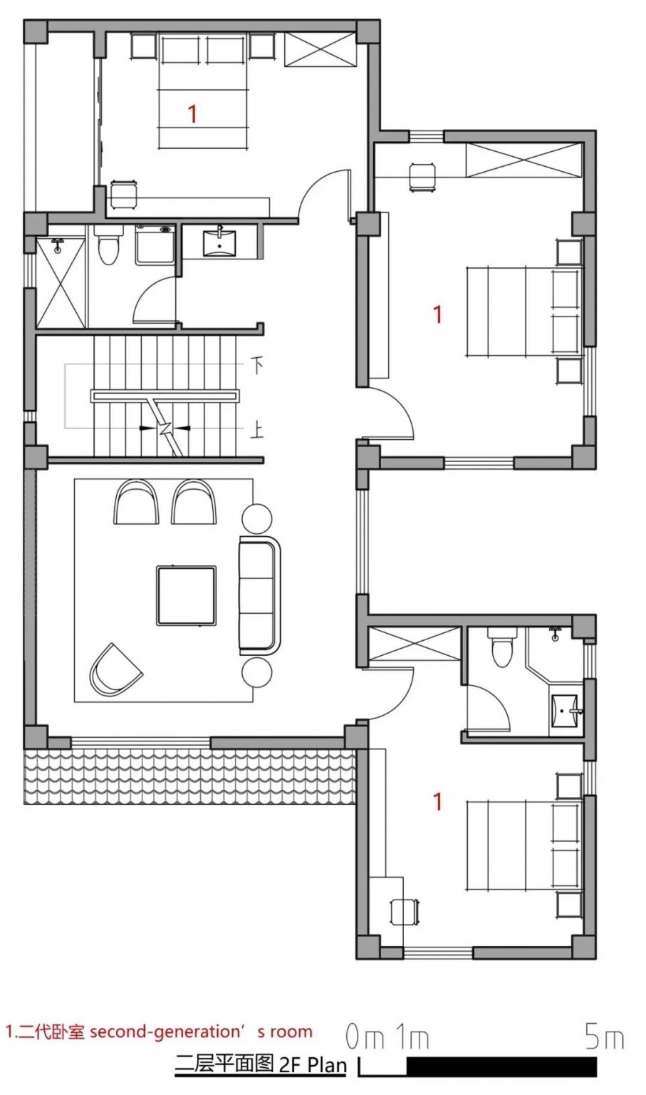
新住宅采用独栋形式,回应了当代农民家庭结构和居住诉求。住宅占地严格控制在120平米以内,建筑层数不超过3层。空间组织考虑闽南地区的生活习惯,在常规功能空间之外,设置专属的空间,如饮茶空间,顶层设置祭祖空间,农居储藏空间;在条件允许情况下,设置独立小院,留给村民种植蔬菜。

Reasonable Spatial Organization
The new houses are in the form of detached buildings, responding to the contemporary structure and housing demands of rural families. Each house strictly occupies no more than 120 square meters of land and have no more than 3 floors. The spatial organization considers the living habits of the southern Fujian region and sets up exclusive spaces beyond the conventional functional spaces, such as tea-drinking space, ancestral worship space on the top floor, and storage space for agricultural households. Where conditions allow, independent small courtyards are set up for villagers to grow vegetables.



强调孝悌文化在住宅中的体现。除顶层设置祭祖空间外,各层设置家庭公共空间,供兄弟之间的交流。首层设置老人房,并根据适老性要求,对老人房及相关设施进行设计。如设置无障碍入门坡道、防滑瓷砖、家具导圆角、适老卫生间、声控开关和床头呼叫铃等,积极回应乡村老龄化问题。

Emphasis is also placed on the embodiment of filial piety culture in the residential architecture. In addition to the ancestral space on the top floor, each level is equipped with a family common area for communication among siblings. The first floor is designed as an elderly room, and facilities are designed according to the requirements of elderly-friendly design. This includes the installation of barrier-free entry ramps, non-slip tiles, furniture with rounded corners, elderly-friendly bathrooms, voice-controlled switches, and bedside call bells to actively respond to the problem of aging in rural areas.



项目关注产业化的可能性。随着近年来乡村旅游的发展,及村庄常驻人口的缩减,很多民居被改造为民宿使用。本案中的部分民居(根据村民的要求)可以兼顾自己居住和民宿的双重用途。设计之始,建筑师就考虑了未来产业化的可能性,如通往二层的独立户外楼梯,可以将民宿客人和主人的流线分开,互不打扰;再如景观好的方位采用落地大玻璃,使建筑更透明,室内获得更良好的视野。

The project pays attention to the possibility of industrialization. With the development of rural tourism in recent years and the reduction of the resident population in the village, many residential houses have been transformed into homestays. Some residential houses in this case, according to the requirements of villagers, can take into account the dual purposes of their own residence and homestay. At the beginning of the design, the architect considered the possibility of industrialization in the future. For example, the independent outdoor stairs leading to the second floor can separate the flow lines of the guest and the host of the homestay without disturbing each other. Another example is the use of large glass on the floor in a good landscape, which makes the building more transparent and provides a better view from inside.




社区建构和景观设计

根据乡村生活特点,设置社区公共配套建筑,为区域内村民提供公共服务。社区内设有村民活动中心,包含:戏台、多功能会议室、日常照料中心、特产商店、社区公益图书室等空间。村民活动中心将作为一个基点,重构邻里关系,延续传统文化。

Community Construction and Landscape Design

According to the characteristics of rural life, community public facilities buildings are set up to provide public services for villagers in the area. The community has a village activity center, which includes a stage, multifunctional meeting room, daily care center, specialty shop, and community public welfare library. The village activity center serves as a hub to reconstruct neighborly relationships and extend traditional culture.



社区内设有多个中小型室外公共空间,满足区内村民的各类生产生活需要。如流水席广场,可以举办各类婚丧嫁娶活动,和村民活动中心一起加强社区凝聚力,重构乡村人与人之间的社交关系;儿童游乐小广场为社区内的儿童提供了休憩玩耍的场地;晒谷场则满足村民平时晾晒粮食的需求。

There are several small and medium-sized outdoor public spaces in the community that meet the various production and living needs of the villagers in the area. For example, the open-air banquet square can host various weddings, funerals, and other activities, together with the village activity center to enhance community cohesion and reconstruct social relationships among rural people. The children's playground provides a place for children in the community to relax and play. And the threshing ground meets the needs of villagers for drying grains.




社区内的景观力求乡土与实用并存。首先,尽量保留原场地中的大型乔木,成为空间规划和场所营造的基点;其二,大量使用乡土材料和本地植被,如地方石材、地方树种,甚至是蔬菜等,不追求城市性的公园感;第三,引后山水系进入社区中,形成明水绕村的格局,改善小气候的同时为社区增加灵气。

The landscape in the community aims to balance the local culture and practicality. Firstly, large trees on the original site are preserved as the base points for space planning and place creation. Secondly, a large amount of local materials and vegetation are used, such as local stone, tree species, and even vegetables, for the design does not pursue the urban park-like feel. Thirdly, the mountain water system is introduced into the community, creating a pattern of open water surrounding the village, improving the microclimate while adding vitality to the community.



共同缔造机制

本案坚持在设计、建造和使用过程中的共谋、共建、共享。设计前期,通过对当地村民、村镇领导和乡贤的交流,了解村民实际需要。初步成果完成后,进行现场方案讲解,征求村民对新民居的意见。

Co-creating MechanismThis case insists on collusion, co-construction and sharing in the process of design, construction and use. At the early stage of the design, the actual needs of villagers were understood through the communication with local villagers, village and town leaders and respected villagers. After the completion of the preliminary results, the on-site scheme will be explained and the villagers' opinions on the new residence will be solicited.


在施工过程中,不机械的遵循图纸,而是根据实际情况,及时了解村民对设计和施工的意见,以及新出现的需求,合理调整方案,最大限度满足村民需要。同时,建立施工共评机制,设立“建房管理理事会”,由村内德高望重的乡贤和代表担当理事,对施工进行监督。

During the construction process, the drawings were not followed mechanically, but according to the actual situation, timely understanding of the villagers' opinions on the design and construction, as well as the emerging needs, the plan was reasonably adjusted to meet the needs of the villagers to the maximum extent. At the same time, the construction joint evaluation mechanism was established, and the "Housing Management Council" was established, with the respected villagers and representatives in the village as the directors to supervise the construction.


创新性的采用“四个一点”模式,细化完善新时代农村社区建设的项目资金。所谓“四个一点”是指:向上争取一点,镇村投一点,农户出一点,银行融一点。社区的公共设施,公共配套建筑由政府出资建设,村民的新民居建筑由村民自己出资。项目严格控制单方建设造价在1850元/平方以内,确保村民可以承受,并具有可推广性。

An innovative "four-one-portion" fundraising model was adopted to refine and improve the project funding for rural community construction in the new era. The "four-one-portion" model refers to: one portion seized from higher authorities, one portion invested by the town and village, one portion contributed by farmers, and one portion borrowed from banks. The community's public facilities and infrastructure are funded by the government, while the construction of new homes for villagers is funded by the villagers themselves. The project strictly controls the construction cost per square meter within RMB1850 yuan per square meter, ensuring that the villagers can afford it and this has replicable value.


结语

无论是在城市还是乡村,民居住宅都是区域中建设量最大的空间单元,也是构成区域特征最为重要的元素。但长期以来,主管部门和建筑师对新民居的关注一直都远低于对公共建筑和传统民居的关注。这导致了乡村民居不是粗陋的模仿城市住宅,就是简单的复制传统形式。两者对于乡村的发展都是不利的。

EpilogueWhether in urban or rural areas, residential housing is the largest spatial unit in the region and the most important element that constitutes regional characteristics. However, for a long time, the attention of regulatory authorities and architects to new residential buildings has been far lower than that of public buildings and traditional residential buildings. This has led to rural dwellings either imitating urban housing roughly or simply replicating traditional forms. Both are detrimental to the development of rural areas.

建造过程
construction process


本案是对乡村新民居的设计和建设的一次新尝试:建筑师力求活态的继承地方建筑文化,并强调新民居、新社区、新景观对村民新生活诉求的对应。此外,在造价和建设机制等层面,本案也考虑了可落地性。总之,建筑师希望它能够真正成为一种可复制推广的乡村民居营造的新模式,为中国的乡村建设贡献智慧。

This case is a new attempt at the design and construction of new rural residential buildings: the architects strive to inherit local architectural culture in a lively manner, and emphasizes the corresponding demands of new residential buildings, new communities, and new landscapes for the new life of villagers. In addition, in terms of cost and construction mechanism, this case also considers the feasibility of implementation. In short, the architects hope that it can truly become a replicable and promotable new model for rural residential construction, contributing wisdom to China's rural construction.














项目信息

项目名称:永春县新时代农村社区
地点:福建省泉州市永春县吾峰镇吾西村
业主:永春县吾峰镇人民政府
设计单位:三文建筑
主持建筑师:何崴、陈龙
团队成员:梁筑寓、唐静、王梓亦、孟祥婷、刘松、刘泳、张宇、郑鑫、吴轩、姚兴壕
施工单位:中博城建工有限公司
总建筑面积:16000㎡
一期建筑面积:4800㎡
设计时间:2019年7月-2021年12月
一期建成时间:2022年12月
摄影:金伟琦

Project information

Project name: New Era Rural Community in Yongchun County
Location: Wuxi Village, Wufeng Town, Yongchun County, Quanzhou, Fujian Province, China
Owner: Wufeng Town People's Government of Yongchun County
Architectural Design:3andwich Design
Lead architects: He Wei, Chen Long
Team: Liang Zhuyu, Tang Jing, Wang Ziyi, Meng Xiangting, Liu Song, Liu Yong, Zhang Yu, Zheng Xin, Wu Xuan, Yao Xinghao
Construction unit: Zhongbo Urban Construction Engineering Co., Ltd
Total construction area: 16,000 sqm
Phase I building area: 4,800 sqm
Design time: July, 2019 to Dec., 2021
Completion time: Dec., 2022
Photography: Jin Weiqi



凡注明“国际设计网”的所有文章,及本网站上的项目案例,未经本网授权不得转载、摘编或利用其它方式使用。
已经授权者,应在授权范围内使用,并注明“来源:国际设计网”。违反上述声明者,本网将追究其相关法律责任。